Overview
Description
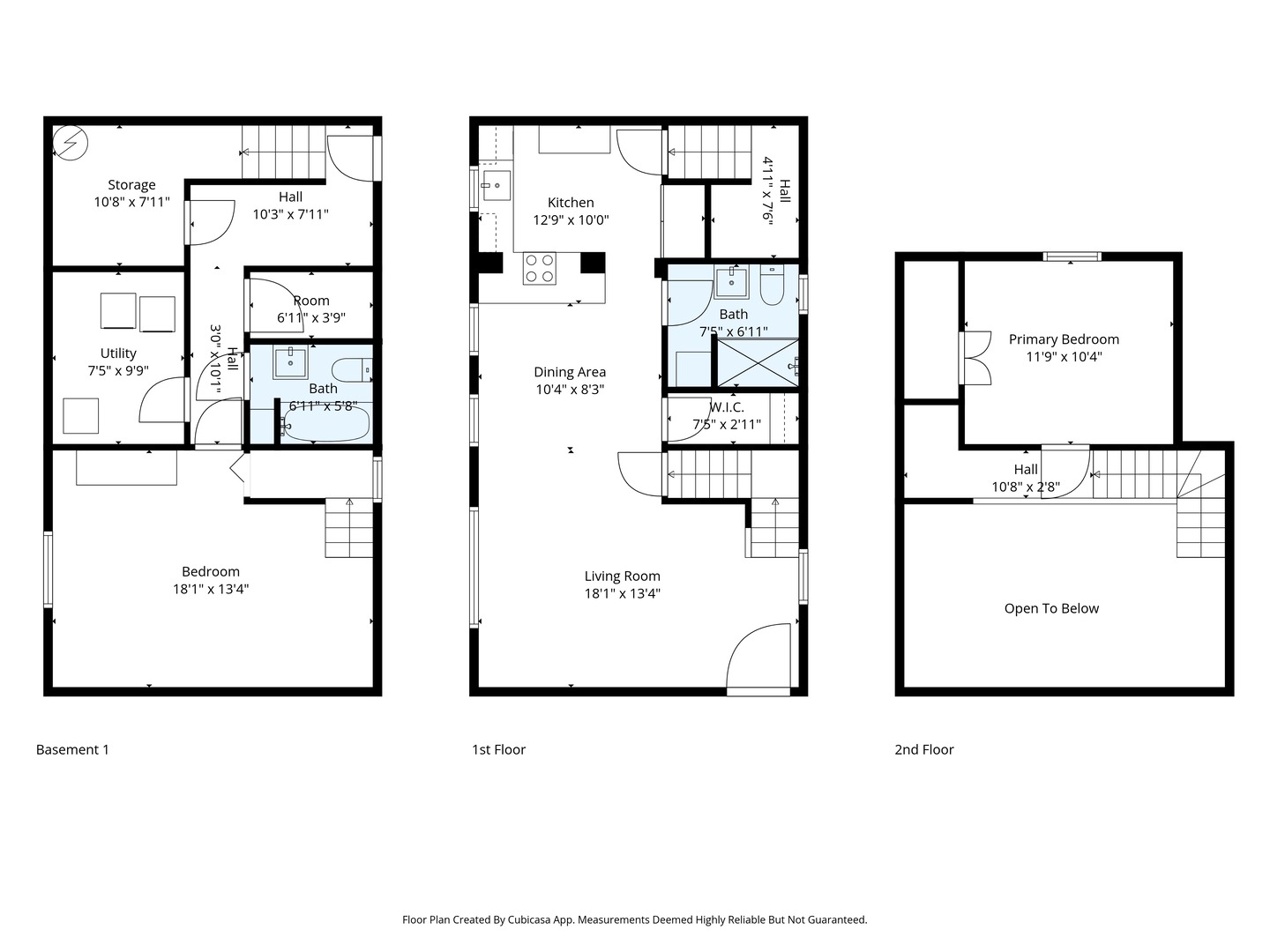
Turnkey, fully renovated 5-unit apartment building in the heart of Wicker Park – one of Chicago’s most sought-after neighborhoods. Gut rehabbed in 2021 with high-end finishes throughout, this 7 bed / 6 bath building is a rare, low-maintenance investment opportunity ready to perform from day one. The building consists of the following: 1 bed/1 baths (2), 1 bed/1 bath plus den (1), 2 bed/1 bath (1), and a tri-level 2 bed/2 bath with bonus storage (1). Each unit features in-unit laundry, new appliances (dishwasher, oven/range, refrigerator), custom cabinetry, custom closets, grey wood finish floors, designer lighting, and smart home amenities including a Ring doorbell and Nest thermostat. Units boast generous storage, and the building offers additional storage in the attic. All units are individually metered for utilities, keeping operating costs lean and management simple. The units themselves get plenty of sun in the front and thoughtfully laid out – several feature a flexible office nook or secondary bedroom, beautiful barn doors, and pantry storage that sets them apart from typical rental stock. The location is unmatched. Steps from the Division Blue Line, Division Street’s bar and restaurant corridor, Jewel, Target, a Divvy station, and a neighborhood community garden – tenants have everything they need within a 5-minute walk. This building offers investors a truly low-overhead, high-demand asset in a neighborhood that consistently commands strong rents and minimal vacancy.
- Principal and Interest
- Property Tax
- HOA fee
- Private Mortgage Insurance































