Overview
- 184572
- Property ID
- Updated On:
- April 12, 2026
- Independent Homes
- Category
- 3
- Bedrooms
- 4
- Bathrooms
- 3,100 ft2
- Property Size
Description
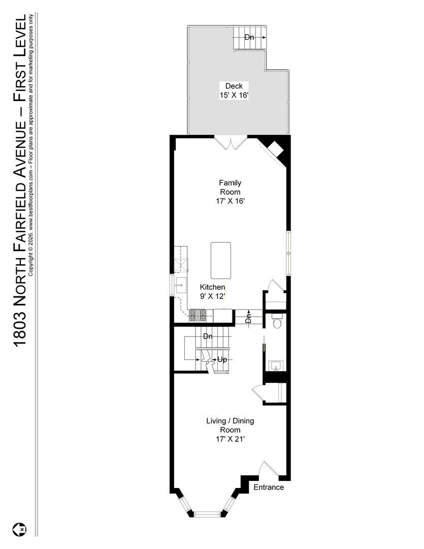
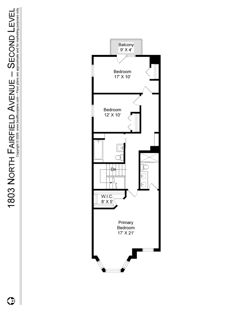
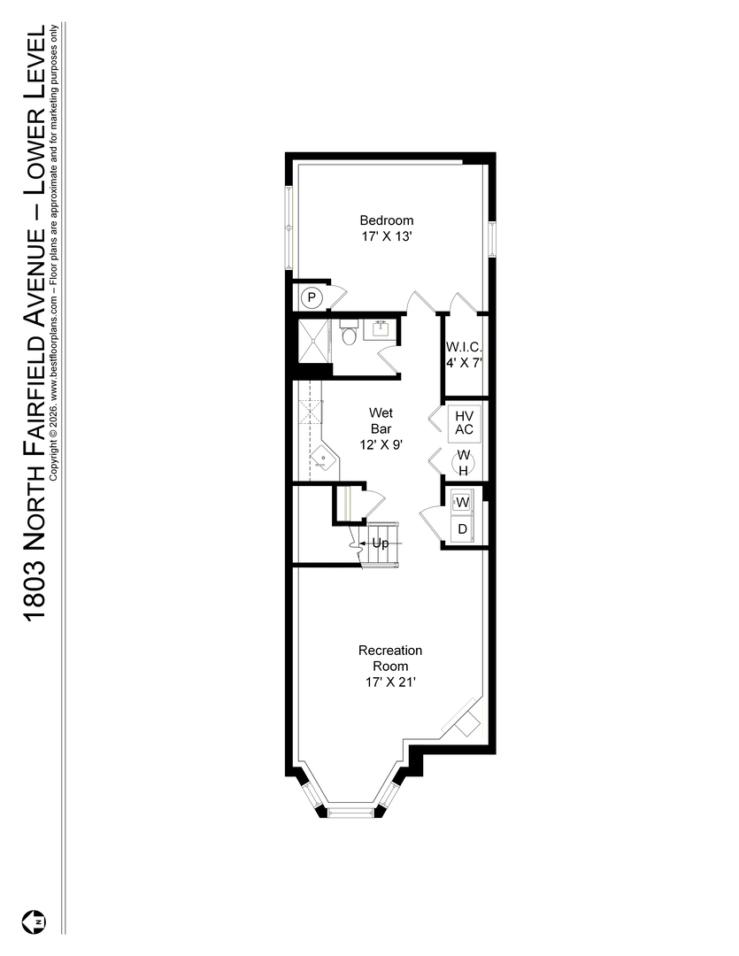
**HIGHEST AND BEST DUE MONDAY 4/13 AT 10:00AM.** Fantastic single-family home on a picturesque, tree-lined street in the heart of prime Logan Square, just steps from the 606! This beautifully updated home offers an ideal open-concept main level filled with natural light, featuring an inviting sun-drenched living room with soaring vaulted ceilings, a modern updated white kitchen, and a spacious family room with dedicated dining area, pantry, fireplace, and beautiful hardwood flooring throughout. Seamlessly extending from the main living space, step out onto an expansive deck overlooking a rare, true backyard with lush grass-perfect for entertaining, summer gatherings, and everyday outdoor living. A two-car garage adds convenience and functionality. A striking center-entry staircase with skylight leads to the second level, where you’ll find three generously sized bedrooms. The exceptional primary suite is a true retreat, showcasing vaulted cathedral ceilings, a beautiful bay window, a walk-in closet, and a fully gut-renovated en-suite bath complete with skylight. The finished lower level offers incredible additional living space, including a large family room with a built-in bar, gas fireplace, a spacious fourth bedroom, and a full bathroom-ideal for guests, office space, or flexible living arrangements. Unbeatable location with easy access to the 606, Blue Line, and Logan Square’s vibrant dining scene, coffee shops, breweries, boutiques, and more-this is city living at its finest!
- Principal and Interest
- Property Tax
- HOA fee
- Private Mortgage Insurance


































