Overview
Description
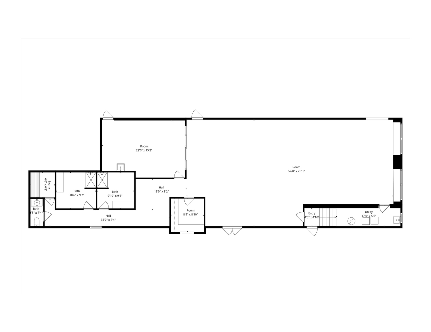
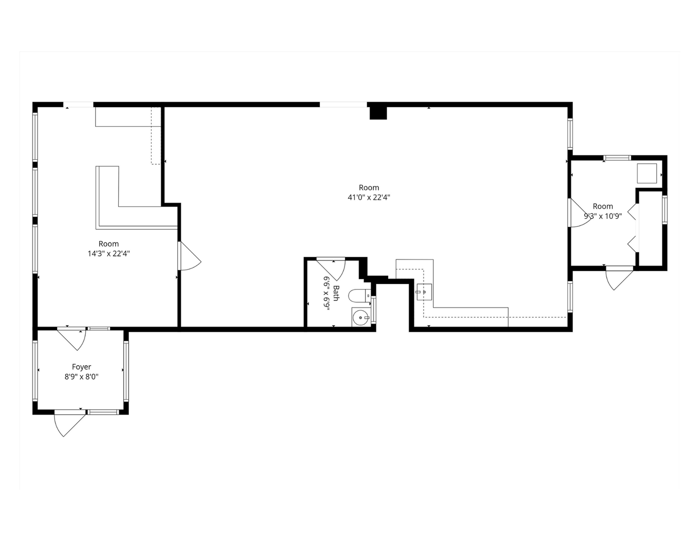
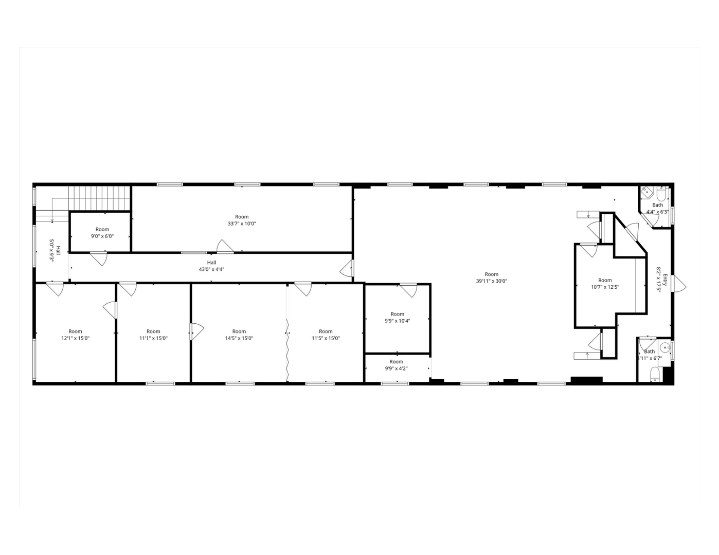
Great rental location near metra train and emerging business area including new Creative Arts Center great oppertunity for retain or office space as large as 9136 sq feet or can be divided to 1,315 , 2,061, 3,376,5,764, or 7,825 bring your needs for this amazing opportunity. Centered right off of Hazel Crest’s new “Creative Arts District,” the new revitalization area (located at 170th and Dixie Highway) promises facade revitalizations, as well as a new lawn area that will host local markets and outdoor concerts! This 9,140 square foot building has so much space and potential and is in the thick of all the new and exiting changes in the area! The property has 23 parking spaces plus on street parking. The The building was previously occupied by a physical therapy and medical use, but has substantial office/flex space. Close to the expressway and the new Wind Creek Casino!














































