Overview
- 303934
- Property ID
- Updated On:
- April 19, 2026
- Independent Homes
- Category
- 2
- Bedrooms
- 3
- Bathrooms
- 1,891 ft2
- Property Size
Description
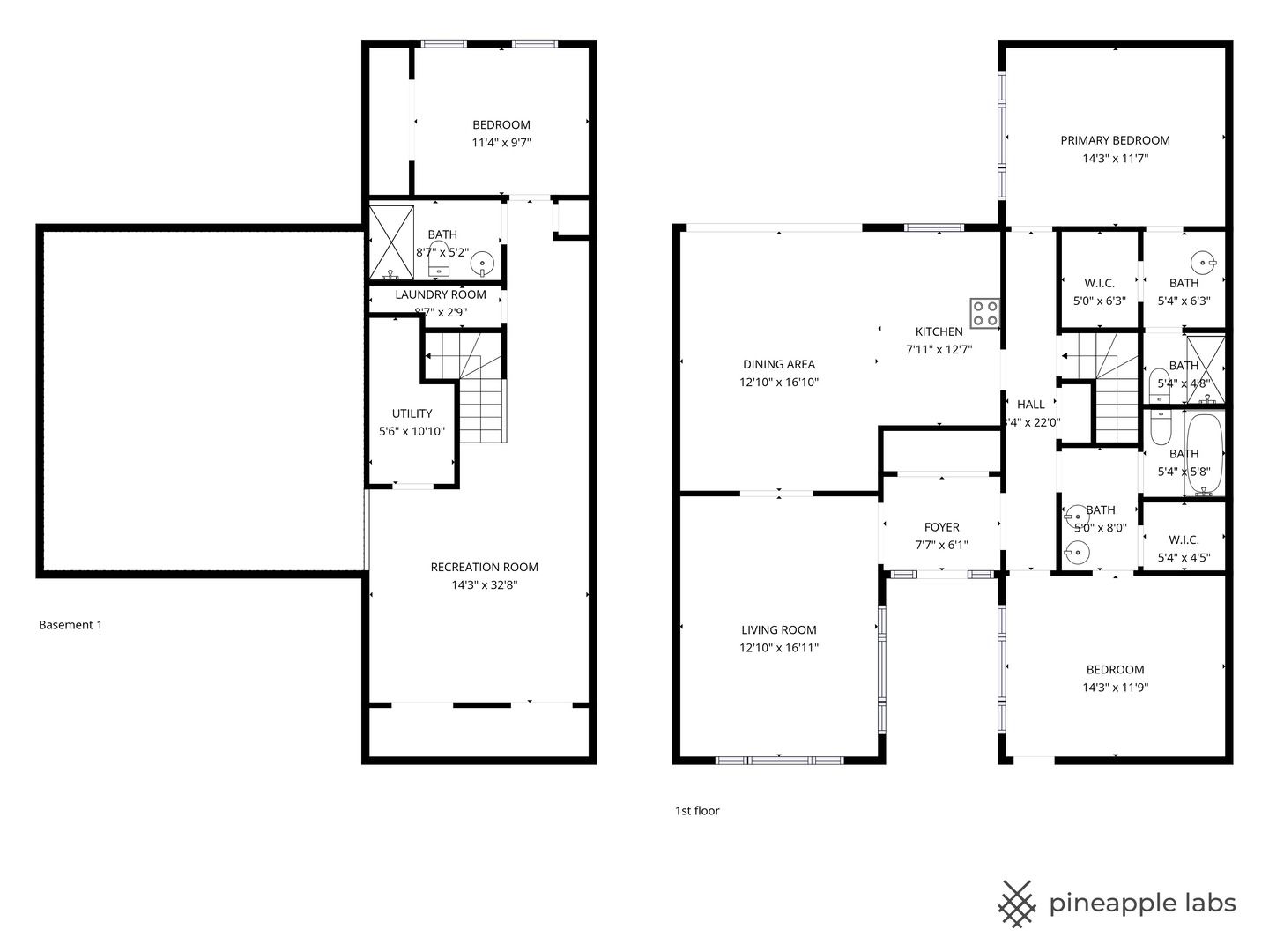
Welcome to 1817 Somerset Lane, in The Commons, in a highly sought-after ranch-style community in top 10 School District 225, Glenbrook North. 3 Full bedrooms. 3 Full bathrooms. 1st floor primary & 1st floor 2nd bedroom, each ensuite. Private end-unit. Attached 1 car garage. You enter light-filled oversized foyer with a huge double closet. Connected Living room & dining room, with their gleaming bamboo floors are over 33 feet long leading to the open kitchen, letting you be a part of your events. Wall of windows leads to private stunner of a patio & yard. Stainless steel kitchen appliances. Super cool jumbo secret pantry hidden in the kitchen. The residence’s main floor has a chic modern primary suite with large windows, brick feature wall, stunning white full bath with quartz countertops & modern silver hardware & a walk-in closet. Second main floor ensuite bedroom with walk-in closet & Jack & Jill modern bath. Newly finished quiet basement with full bathroom, large bedroom with double closets & a separate laundry room with sink. Basement recreation room features plentiful space for relaxing, exercising, & office space. Double closets. Clean, unfinished huge crawlspace for extra storage space. Newer, regularly maintained mechanicals throughout. Remodeled & painted throughout – new roof (2025), 14 new windows, new can lights, new bamboo floors, new silver modern European lever door handles, new painting, new primary ensuite bathroom (2019), new 2nd full ensuite bathroom on main floor (2019), new basement full bathroom (2019), new window treatments, a/c (2024), furnace (2021), water heater (2021), humidifier (2021), Attached, spacious 1 car garage with tons of storage space including insulated attic. Abundant guest parking. Secluded extra large private backyard featuring stone patio & beautiful flora. Fantastic location – close to town, Metra station, Village Green Park, the library, Graeter’s, Napolita, Sunset Foods, Kamehachi & Francesca’s North. No rentals. Living at The Commons is easy-living – no more shoveling, mowing…it’s all done for you! Buyer got cold feet…now it’s your time to win this beauty.
- Principal and Interest
- Property Tax
- HOA fee
- Private Mortgage Insurance















































