Overview
- 443822
- Property ID
- Updated On:
- April 24, 2026
- Independent Homes
- Category
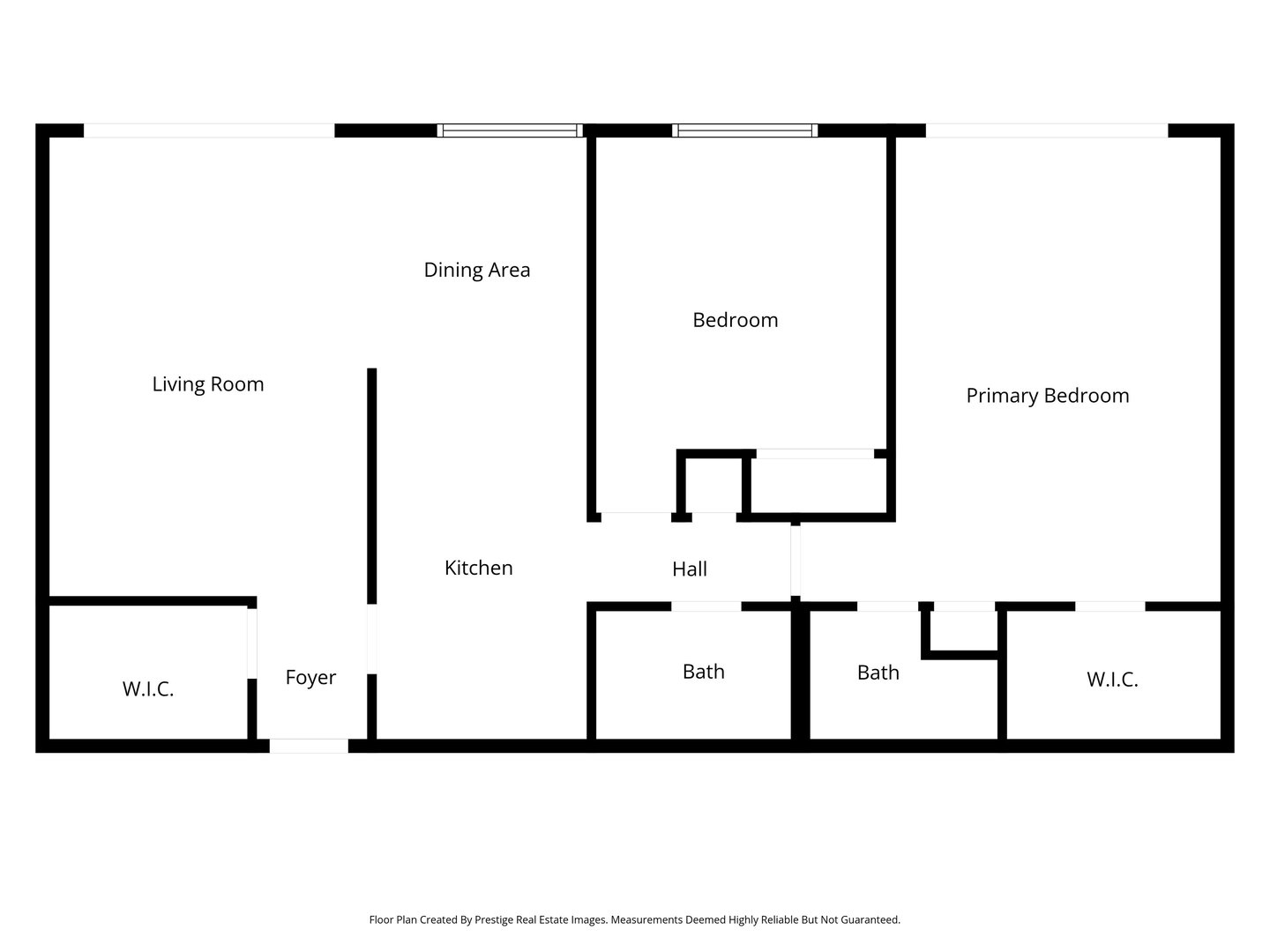
- 2
- Bedrooms
- 2
- Bathrooms
- 1,200 ft2
- Property Size
Description
Welcome to this move in ready first floor condo offering comfort, convenience, and flexibility. This well maintained 2 bedroom, 2 bathroom unit features a functional layout with spacious living and dining areas and a walk out balcony that provides the perfect space to enjoy fresh air and everyday relaxation. The kitchen flows easily into the main living area, creating a comfortable setting for both daily living and entertaining. The primary bedroom includes a private full bathroom and custom closet, while the second bedroom and full hall bath provide additional space for guests, family, or a home office. All utilities are included except electric, helping simplify monthly budgeting. HOA dues are $431 monthly. On site laundry and additional storage are available for added convenience. Located on a quiet block across from James Hart School and within the sought after Homewood Flossmoor High School District. The unit is rentable, making it a strong option for both owner occupants and investors seeking a well located property with long term potential. Being sold as-is.
- Principal and Interest
- Property Tax
- HOA fee
- Private Mortgage Insurance






























