1825 N Wilmot Avenue, Chicago, IL

$1,269,000

Overview

  • 216608
  • Property ID
  • Updated On:
  • April 19, 2026
  • 3
  • Bedrooms
  • 4
  • Bathrooms

Description

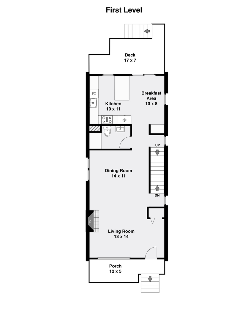
Beautifully updated 3 bed, 3.1 bath single-family home on charming, tree-lined Wilmot Street in the heart of Bucktown. Bright and spacious floor plan with modern updates, all just steps from top restaurants, shopping, nightlife, and the 606 Trail! A fenced yard and welcoming front porch extend the living space outdoors. Inside, the sun-filled living and dining area features a wood-burning fireplace, custom built-ins, and great natural light. The eat-in kitchen is thoughtfully designed with classic white shaker cabinetry, under-cabinet lighting, quartz countertops, a hexagon tile backsplash, farmhouse sink, stainless steel appliances including new fridge, peninsula with bar seating, and a greenhouse window. The adjacent breakfast nook adds personality with statement wallpaper and opens to the rear deck. The powder room is nicely updated with good storage. Upstairs, you’ll find three bedrooms, including a spacious primary suite with all new bath, along with a Jack-and-Jill bath for the second and third bedrooms. The finished lower level offers a generous family room, full bath, laundry area with new washer/dryer, sink, storage, and access to the backyard. Enjoy outdoor living with a rear deck, turfed yard, and a detached two-car garage equipped with upgraded electric for EV charging. Turn-key home with numerous recent updates and thoughtful design touches throughout.

Bathrooms
3+
Bedrooms
3
Climate Control
Air Conditioning
Heating
Garden
Yes
Parking
Garage
Other Features
Asphalt
Brick
Built-in Features
Central Air
Curbs
Deck
Detached
Dishwasher
Disposal
Dryer
Forced Air
Garage Door Opener
Garage Owned
Hardwood
Microwave
Natural Gas
Park
Public
Public Sewer
Range
Refrigerator
Shared Laundry
Sidewalks
Sink
Street Lights
Street Paved
Vinyl Siding
Washer
Wood Burning

yelp logo

$6,506.41
per month
  • Principal and Interest
  • Property Tax
  • HOA fee
  • Private Mortgage Insurance
$ 4,920.16

Similar Listings

For Sale

3305 York Road, Oak Brook, IL

$6,700,000
Beds:
6
Baths:
8
Size:
8,947 ft2
Featured as one of the Top Spotlight Homes on the Hinsdale Center of the Arts 2010 Oak Bro ...
For Sale

435 N Michigan Avenue #503, Chicago, IL

$2,675,000
Beds:
3
Baths:
4
Size:
3,249 ft2
Tribune Tower Residence offers an amazing opportunity to own a home in one of Chicago's mo ...
Information for the property at 1825 N Wilmot Avenue, Chicago, IL, 60647 (Property ID: 216608) is deemed reliable but not guaranteed. Property details, pricing, and availability are subject to change without notice. Buyers should independently verify all information before making any real estate decisions.

Compare Listings

Sunita Kakarlapudi