1849 N New England Avenue, Chicago, IL

$549,000

Overview

  • 423530
  • Property ID
  • Updated On:
  • April 25, 2026
  • 3
  • Bedrooms
  • 2
  • Bathrooms
  • 2,248 ft2
  • Property Size

Description

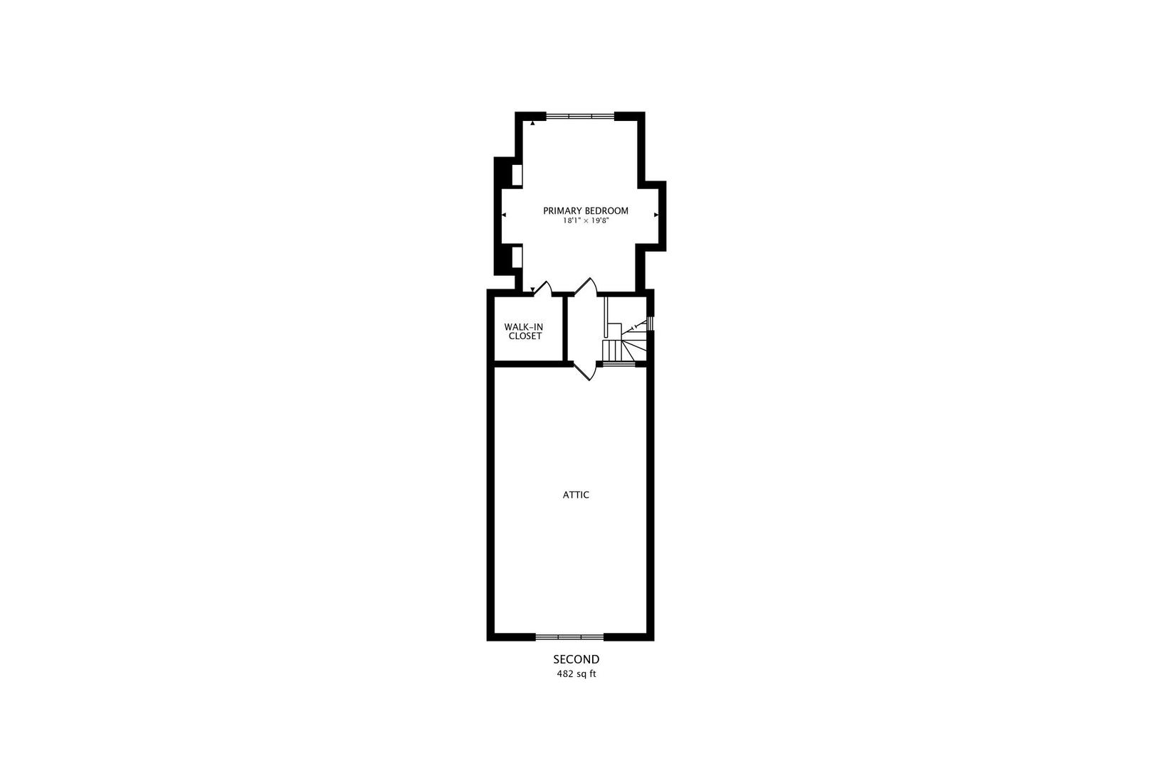
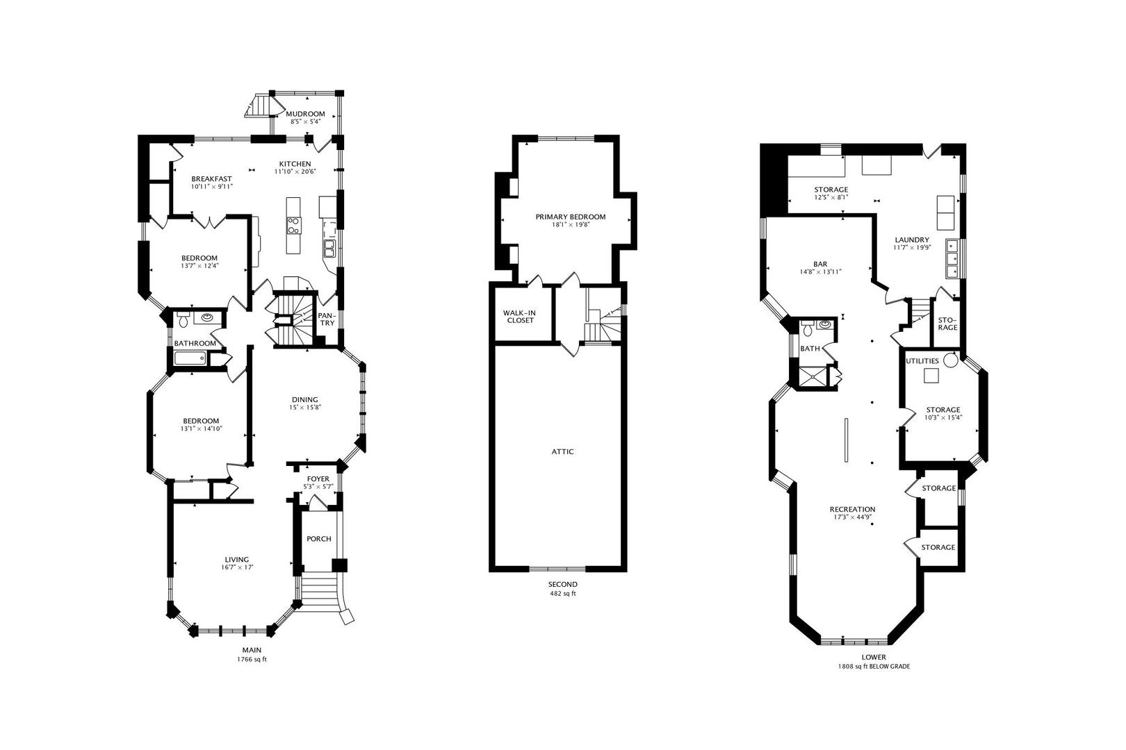
Stunning Galewood Octagon Bungalow can be yours! Step into timeless elegance with this exceptional jumbo octagon bungalow located in the charming Galewood neighborhood. This architectural gem showcases the distinctive character and craftsmanship that defines early 20th-century bungalow design, while offering the modern updates today’s homeowners desire. The generous floor plan of this 3 bedroom/2 bath home provides an abundance of naturally flowing space and abundant natural light from its uniquely angled windows. Original hardwood floors gleam throughout the home, adding warmth and authentic period charm. Central air conditioning but added bonus of the whole house fan keeps the home at the coolest of temps. The 3 spacious bedrooms and 2 full bathrooms offer comfortable accommodations for the entire family. This home is a treasure trove of vintage architectural details offering stunning original stained glass windows which catch the light beautifully, casting colorful patterns throughout the rooms and serving as functional works of art. These preserved period details, combined with original woodwork and trim, create an atmosphere of authentic historical character that cannot be replicated. The updated kitchen seamlessly blends modern convenience with the home’s vintage aesthetic, providing contemporary appliances and functionality while respecting the home’s original charm. The thoughtfully maintained interior celebrates the craftsmanship of its era while ensuring livability for modern families. Outside, a convenient side driveway and 1-car garage provide practical parking and storage solutions, adding to the home’s functionality and appeal. This rare Galewood bungalow is a dream home for those who appreciate architectural significance, vintage charm, and authentic period details. An exceptional opportunity to own a distinctive piece of Galewood’s rich residential heritage.

Bathrooms
2
Bedrooms
3
Climate Control
Air Conditioning
Heating
Floor Area
2,000-3,000 sqft
Garden
Yes
Parking
Garage
Other Features
1st Floor Bedroom
1st Floor Full Bath
Brick
Built-in Features
Bungalow
Central Air
Circuit Breakers
Concrete
Cooktop
Detached
Dishwasher
Double Oven
Dryer
Fan-Whole House
Garage Owned
Hardwood
Lake Michigan
Microwave
Pantry
Public Sewer
Radiator(s)
Refrigerator
Side Driveway
Some Stained Glass
Stainless Steel Appliance(s)
Washer

yelp logo

$2,814.83
per month
  • Principal and Interest
  • Property Tax
  • HOA fee
  • Private Mortgage Insurance
$ 2,128.58

Similar Listings

For Sale

28W524 Wynn Avenue, West Chicago, IL

$1,695,000
Beds:
7
Baths:
7
Size:
5,578 ft2
Welcome to this exceptional, rare custom-built estate (2005) offering over 5,500 square fe ...
For Sale

1147 Steeple View Drive, Long Grove, IL

$1,570,000
Beds:
4
Baths:
4
Size:
5,480 ft2
Nestled within the prestigious Grove Country Club community and just minutes from charming ...
Information for the property at 1849 N New England Avenue, Chicago, IL, 60707 (Property ID: 423530) is deemed reliable but not guaranteed. Property details, pricing, and availability are subject to change without notice. Buyers should independently verify all information before making any real estate decisions.

Compare Listings

Sunita Kakarlapudi