Overview
- 124121
- Property ID
- Updated On:
- April 2, 2026
- Independent Homes
- Category
- 4
- Bedrooms
- 4
- Bathrooms
- 3,876 ft2
- Property Size
Description
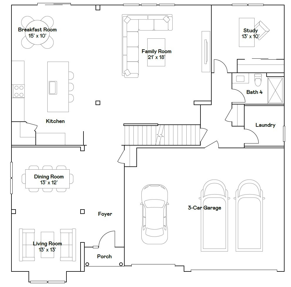
READY FOR MAY DELIVERY!! Homesite #0254 This new two-story home is the community’s largest floorplan. The first floor features a living and dining room at the front of the home, an open design among the family room, designer-select options, gourmet kitchen with GE Profile Double Oven, 36″ cooktop, subway tile backsplash, soft-close cabinetry and drawers throughout and 36″ vent hood and breakfast room and a secluded study. Upstairs, three secondary bedrooms and an owner’s suite with a home office and a giant walk-in closet provide tranquil havens for family members. Exterior will be James Hardie sidings in the color Aged Pewter (pic for reference ONLY) *Photos are not this actual home* Ponds of Stony Creek is a welcoming community of new single-family homes in Elgin, IL, offering the perfect blend of comfort, convenience, and outdoor fun. Designed with families in mind, this community boasts fantastic onsite amenities, including a splash park, tot lot, picnic area, and scenic multi-use trails that wind through natural surroundings. Just a short drive away, downtown Elgin offers even more to explore. Situated along the Fox River, it features charming historic architecture, diverse shops and restaurants, and the popular Elgin Riverwalk-a local favorite for leisurely strolls and riverside views. Enjoy year-round entertainment with festivals, events, and exciting attractions like the Grand Victoria Casino. At Ponds of Stony Creek, every day brings new opportunities for recreation, relaxation, and connection in a community you’ll love to call home.
- Principal and Interest
- Property Tax
- HOA fee
- Private Mortgage Insurance



































