Overview
- 331146
- Property ID
- Updated On:
- April 20, 2026
- Independent Homes
- Category
- 5
- Bedrooms
- 4
- Bathrooms
- 2,648 ft2
- Property Size
Description
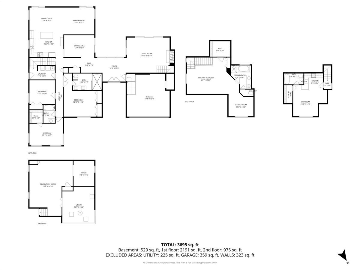
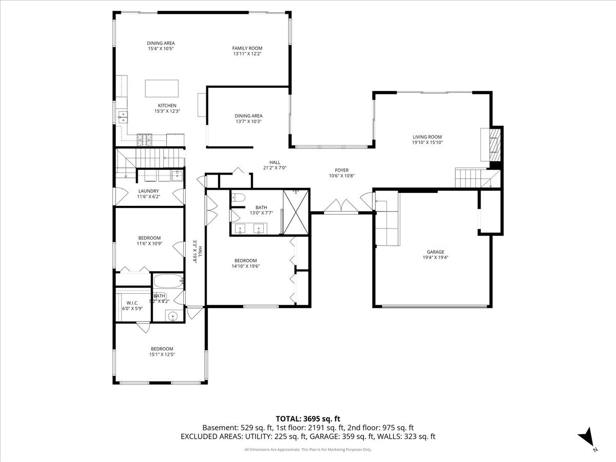
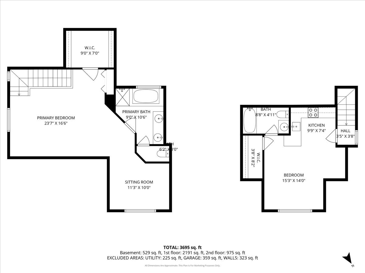
Welcome to 1923 Hillside Lane in sought-after Green Trails, where space, flexibility, and a one-of-a-kind layout come together in a beautiful Lisle setting. This custom-built home offers a rare floor plan with multiple private suite options. The main level features 3 bedrooms and 2 full baths, including a primary suite with custom walk-in shower. The large entry welcomes you into the living room with fireplace, and formal dining room. The kitchen features white cabinetry, granite countertops, stainless steel appliances, and opens to a light-filled family room with vaulted ceiling. Sliding doors from the family room lead to a large patio and connect to the Green Trails walking paths. Upstairs, the home continues to impress with 2 private bedroom suites. One includes a sitting room and ensuite bath, while the other features an ensuite bath and kitchenette, offering exceptional flexibility for related living, guests, multigenerational needs, or private work-from-home space. This home offers a unique opportunity to enjoy generous living space, a versatile layout, nearby trails and parks, and Naperville 203 schools.
- Principal and Interest
- Property Tax
- HOA fee
- Private Mortgage Insurance




































