Overview
- 88139
- Property ID
- Updated On:
- April 2, 2026
- Independent Homes
- Category
- 3
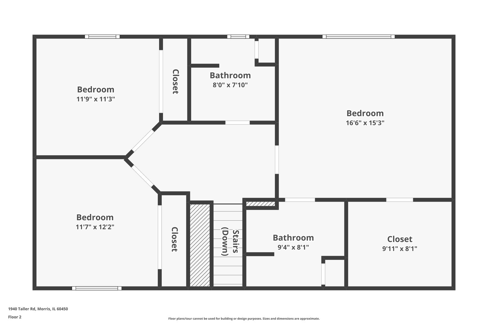
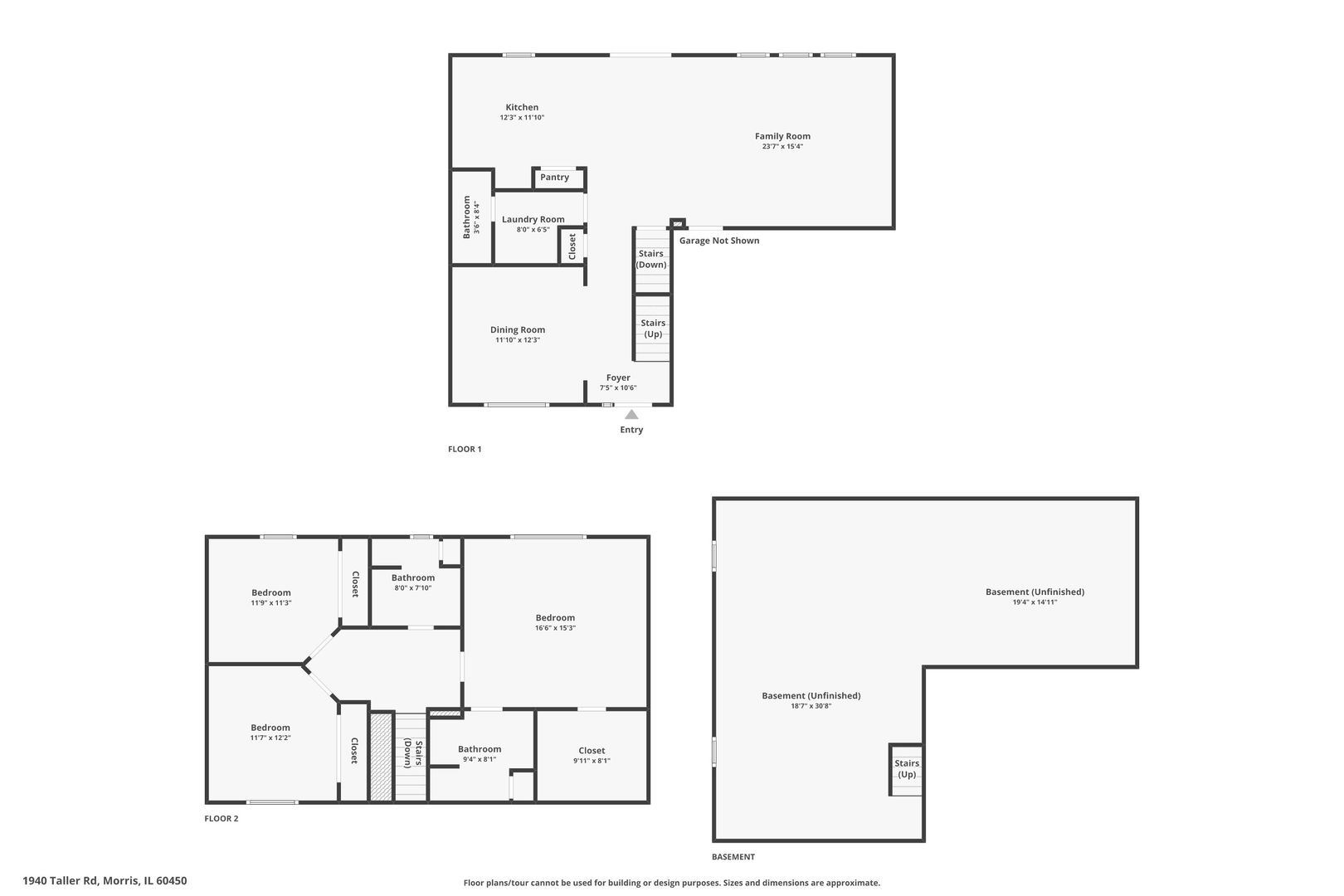
- Bedrooms
- 3
- Bathrooms
- 1,992 ft2
- Property Size
Description
Welcome to Rockwell Estates in Morris! This well-maintained half duplex offers space, functionality, and a layout that just makes sense. Step inside to a soaring two-story foyer that creates an inviting first impression. The main level features a living room that could also serve as a den or home office, a spacious family room, and a kitchen with breakfast bar and large dining area-ideal for everyday living and entertaining. All appliances stay, and the convenience of main floor laundry and a half bath adds to the practicality of the home. Upstairs, you’ll find a generous master suite complete with a full private bath and a huge walk-in closet. Two additional bedrooms and another full bath provide plenty of space for family, guests, or a home office. The full unfinished basement offers great potential for future living space, storage, or both. Outside, enjoy a large fenced backyard-perfect for pets, gatherings, or simply relaxing. With a two-car attached garage and a great location in Rockwell Estates, this is a great opportunity to own a home with room to grow.
- Principal and Interest
- Property Tax
- HOA fee
- Private Mortgage Insurance










































