Overview
Description
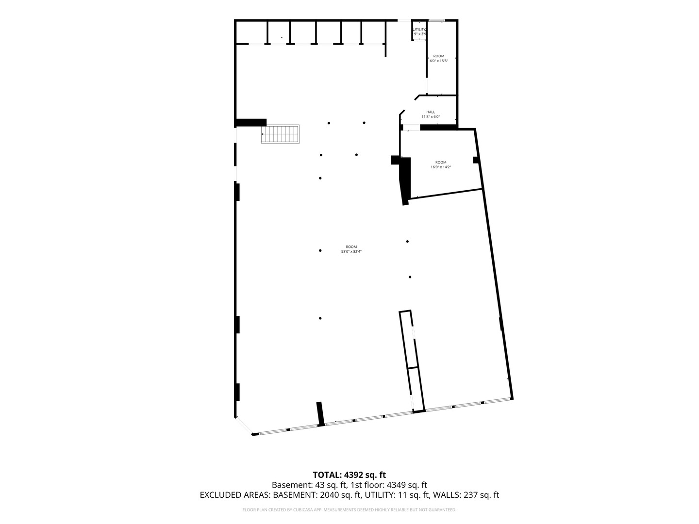
Now for sale! This brick building has been in the family for well over a century! Downtown location on a corner lot with high traffic. Large open space, a few offices and 3 apartments on the upper level. Two apartments are rented out, and one is vacant for showings. Per appraisal for Irrev. Trust, each level supports 4,626 sq ft for a total of 9,252 Above grade Site size is 7,882 sq. ft. and zoning is B-3. This would make a nice office space, hardware store, family entertainment/restaurant….Oh the possibilities! Roof 2016, Fed Pacific Electric panel replaced 2026 and other electrical repairs attached with disclosures. Seller is selling building in as is condition. Open public parking around building and in the back for general city parking. Expenses for utilities are based on an average per month for 3 months (Dec-Feb 2025-26). This is a Trust. Information per recent appraisal and courthouse. Buyer and Buyer’s agent to verify. City of Geneseo is offering incentives for buyer.
- Principal and Interest
- Property Tax
- HOA fee
- Private Mortgage Insurance






















































