Overview
- 251904
- Property ID
- Updated On:
- April 15, 2026
- Independent Homes
- Category
- 3
- Bedrooms
- 2
- Bathrooms
- 1,965 ft2
- Property Size
Description
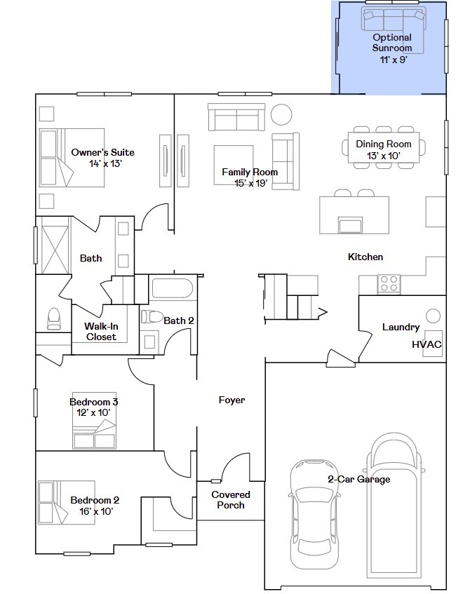
READY FOR JUNE DELIVERY!!!! Homesite# 0070 Step into the Siena, a thoughtfully designed single-story home that blends comfort, efficiency, and modern style. This well-balanced layout features three bedrooms and two bathrooms within an open-concept design that creates a seamless flow between the family room, dining area, and kitchen-perfect for both everyday living and casual entertaining. At the heart of the home, the kitchen shines with a spacious island, Quartz countertops, stainless steel appliances, and generous cabinetry, offering both function and elegance. The private owner’s suite is a peaceful retreat, complete with an expansive walk-in closet and a spa-like en-suite bathroom designed for relaxation. Two additional bedrooms are positioned near a shared hallway bath, offering flexibility for guests, family members, or a home office. The Siena also includes 9-foot ceilings, luxury vinyl plank flooring, plush carpeting, Deluxe shower upgrades, smart-height water-saving commodes, and many other premium features tailored to enrich your lifestyle. Delivering modern living in a streamlined, practical layout, the Siena is a versatile and stylish choice for a wide range of homeowners. Exterior will be Greystone color sidings with Marshall Brick (pic for reference ONLY) *Photos are not this actual home* Experience the perfect blend of comfort, convenience, and outdoor living at Prairie Meadows, a charming new community offering low-maintenance ranch-style homes in the vibrant suburbs of Aurora, Illinois. Thoughtfully designed for effortless living and a love of nature, Prairie Meadows delivers a lifestyle centered on relaxation, recreation, and meaningful community connection. This thoughtfully planned neighborhood will feature a scenic park and playground, modern pickleball courts, a welcoming picnic shelter, fire pit, and comfortable seating areas, along with approximately 15 acres of open space to enjoy fresh air and the natural surroundings. Living at Prairie Meadows means you’re just minutes from some of Aurora’s most popular attractions. Downtown’s RiverEdge Park offers outdoor festivals, an amphitheater, and scenic trails along the Fox River, making it a go-to destination for entertainment and relaxation. For shopping enthusiasts, the Chicago Premium Outlets is a premier open-air retail center featuring more than 170 designer brands, seasonal events, and unbeatable deals. Golfers will love the nearby Orchard Valley Golf Course, a beautifully maintained 18-hole championship course perfect for both casual and competitive play, complete with a welcoming clubhouse for dining and socializing.
- Principal and Interest
- Property Tax
- HOA fee
- Private Mortgage Insurance


























