Overview
- 283301
- Property ID
- Updated On:
- April 18, 2026
- Independent Homes
- Category
- 4
- Bedrooms
- 3
- Bathrooms
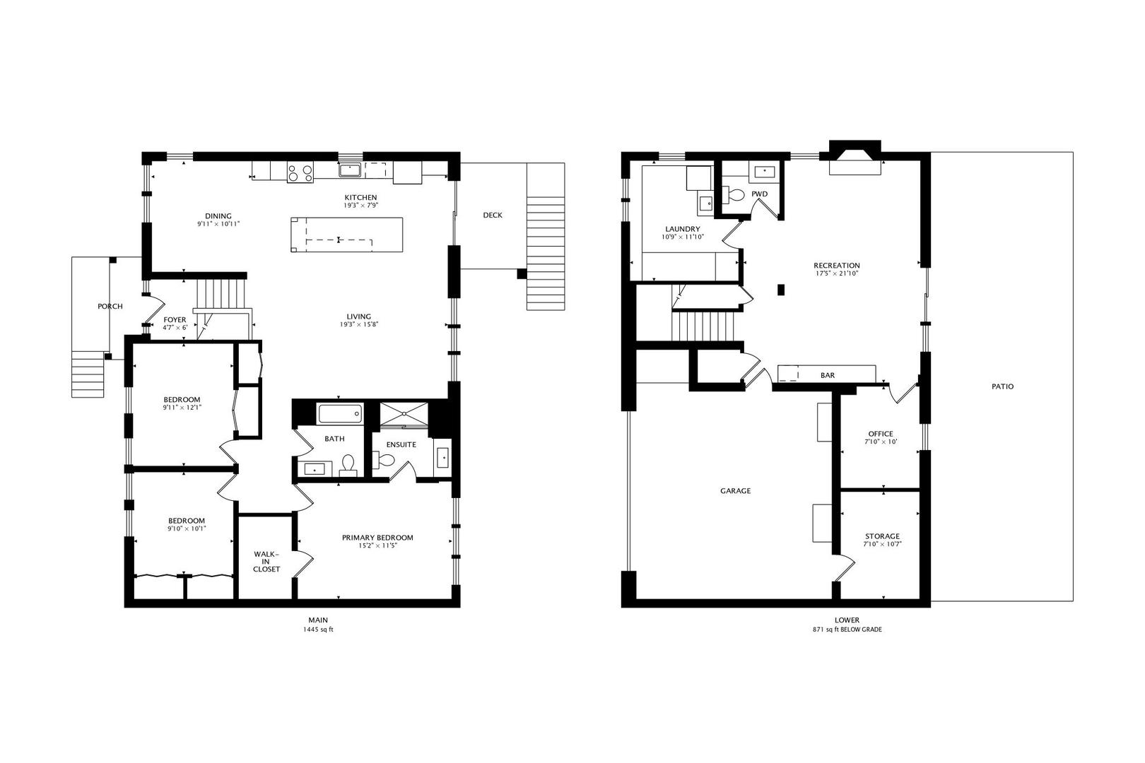
- 2,176 ft2
- Property Size
Description
Acclaimed School District 46, and part of the community of Prairie Elementary, East View Middle School, and Bartlett High School, this rare, fully updated, corner-lot home is a fantastic opportunity! Artfully updated 4-bedroom, 2.5-bath home situated on a desirable corner lot in Hanover Park, this move-in ready property features a completely redesigned kitchen (2022) with modern finishes, new cabinetry, island, updated countertops, and newer appliances, including refrigerator, microwave, and a brand-new stove (2024). The stylish bathrooms have been thoughtfully updated and designed, including a full primary bathroom remodel (2024) and a hall bath remodel (2024), creating a fresh, contemporary feel throughout. The home offers spacious bedrooms, comfortable living areas, abundant natural light, and an open floor plan, is enhanced by new light fixtures throughout the upper level. Luxury vinyl plank flooring adds both durability and style, while the lower-level office has been refreshed with new flooring and paint (2025), perfect for today’s work-from-home lifestyle. Additional major updates include a new HVAC system and whole-house humidifier (2024), providing year-round comfort and efficiency. Enjoy outdoor living with a new deck (2023), extended concrete patio, and professionally landscaped yard (2020) – ideal for entertaining or relaxing. The corner lot offers added privacy and usable space, all in a prime location near the Metra train for easy commuting. Close to parks, shopping, dining, and vibrant community events, including summer concerts, local festivals, and parades in nearby Carol Stream, Bloomingdale, and Bartlett – this home offers not just a place to live, but a lifestyle to love. Don’t miss the opportunity to make this beautifully updated home yours! From the Owner: We loved updating the house for entertaining. Great backyard for kids and animals to play, with a huge space for parties and time to enjoy the beautiful weather. We enjoyed attending community events, such as the Summer Concert Series in Carol Stream & Bloomingdale, Bartlett festivals at the library/park, and Bartlett Parades.
- Principal and Interest
- Property Tax
- HOA fee
- Private Mortgage Insurance































