Overview
- 239916
- Property ID
- Updated On:
- April 29, 2026
- Independent Homes
- Category
- 2
- Bedrooms
- 3
- Bathrooms
- 1,576 ft2
- Property Size
Description
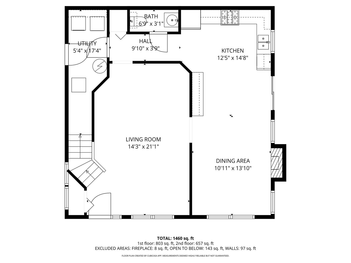
A rare 2 story end unit available with beautiful water views! Priced $12000-$20000 less than some recent sales. Bring your ideas and make this your next home. This home is a spacious 2-bedroom, 2.5 bath townhome with an eat-in kitchen with tons of cabinet space, and all appliances included. You can use the kitchen as a large country kitchen with a fireplace or use it as an eat in kitchen with a family room area by the fireplace. You have so many options! Like the kitchen, the living room/dining room has real hard wood flooring and a 2-story ceiling. The second floor looks over the living space where lots of natural light comes through the multiple windows uniquely placed throughout the home. There is a nice powder room and laundry/utility room on the first floor. Access to the large 2 car garage with plenty of storage. Upstairs is 2 bedrooms and 2 full baths. The Master Suite has vaulted ceilings, white shutters, and laminated wood flooring. An arched doorway leads you into the master bathroom, where there is an oversized vanity with plenty of space to store items and counterspace to spread out, tub/shower combo, separate water closet and 2 more closets. One is a walk-in closet and the other with shelving. The second bedroom has laminate flooring, white shutters and large closet. Hall bath has tub/shower combo and another linen closet!! The views are peaceful here and there is a private patio off the kitchen overlooking the pond. Roof 2020, Siding, trim and gutters 2022. The home is being sold AS-IS and it is an estate sale. NO RENTALS allowed in this community. WELCOME HOME!!
- Principal and Interest
- Property Tax
- HOA fee
- Private Mortgage Insurance






















