Overview
- 35340
- Property ID
- Updated On:
- March 25, 2026
- Independent Homes
- Category
- 3
- Bedrooms
- 3
- Bathrooms
- 2,030 ft2
- Property Size
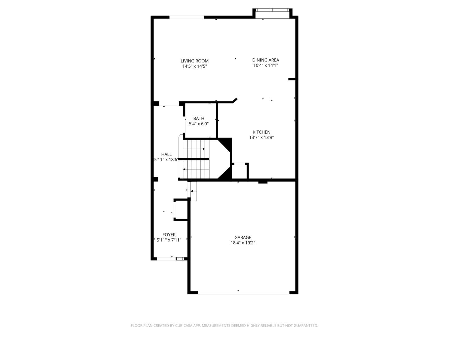
Description
Within walking distance to nationally ranked Stevenson High School and just a 1-minute walk to the Prairie View Metra Station, this exceptional residence offers an unbeatable combination of top-tier education and effortless commuting to Chicago. Location truly doesn’t get better than this. Welcome to 214 Taylor Ct, a stunning residence in Buffalo Grove that delivers the rare trifecta of location, light, and lifestyle. From the moment you step inside, this home feels elevated-thoughtfully designed, beautifully maintained, and perfectly positioned for modern living. The home is flooded with natural sunlight throughout the day. Freshly painted in warm, inviting tones, new carpet upstairs the open-concept layout flows seamlessly and offers over 2000 square feet of comfortable living space-perfect for both everyday life and entertaining. The primary suite feels like a private retreat, featuring two extra-large walk-in closets and a spa-inspired en-suite bathroom with a soaking tub and separate shower, creating the perfect place to unwind. The kitchen is equally impressive, showcasing sleek maple cabinetry, a large center island, and a dedicated table-space area ideal for hosting gatherings or enjoying casual meals. The basement provides flexible living space, ideal for a home gym, office, recreation area, or additional storage. Step outside to a huge rear deck, perfect for grilling, relaxing, or entertaining guests. A two-car attached garage plus two additional driveway spaces ensure convenience for both residents and visitors. Surrounded by natural beauty and amenities, the home is close to Willow Stream Park with its walking trails, playgrounds, and picnic areas, and just minutes from Buffalo Creek Forest Preserve, offering scenic biking and nature paths. Shopping and dining are equally accessible, with favorites like Cooper’s Hawk Winery & Restaurant and the Deer Park Town Center nearby. With tree-lined streets, a strong sense of community, award-winning schools, and easy access to both nature and city life, 214 Taylor is more than a rental-it’s a lifestyle. Opportunities like this are rare. Schedule your private tour today and experience everything this exceptional home has to offer. Application requirements: 2 months deposit, minimum 700 credit score, credit check, background check, and employment verification required with all applications.



























