Overview
- 105725
- Property ID
- Updated On:
- April 3, 2026
- Independent Homes
- Category
- 2
- Bedrooms
- 2
- Bathrooms
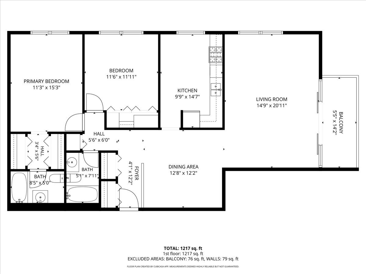
- 1,217 ft2
- Property Size
Description
Bright, sunny, and set on the corner, this inviting condo offers about 1,200 square feet of easy living with 2 bedrooms, 2 full baths, and natural light pouring in throughout. The open living and dining spaces feature beautiful hardwood floors and are perfect for everyday living or entertaining, with the dining area flowing right into the eat-in kitchen. An extra-wide sliding glass door leads to a private east-facing balcony for even more light and a lovely outdoor escape. The kitchen is both stylish and functional, with white cabinetry, stainless steel appliances, a glass tile backsplash, solid-surface countertops, and a movable island that stays. Both bedrooms offer great closet space, and the primary suite includes double closets. Elfa organizers in the bedrooms and entry closets make storage easy and practical. This pet-friendly, professionally managed, and well-maintained building has on-site laundry and includes one assigned parking space plus an additional storage closet. Tucked on a quiet one-way street, the location is hard to beat, just a short distance to Downtown Forest Park, Downtown Oak Park, shopping, restaurants, and the Green Line. The roof was just replaced at the end of 2025, too. A wonderful place to call home! Pet restrictions: 2 cats or 1 dog, no taller than 14″ at shoulder height.
- Principal and Interest
- Property Tax
- HOA fee
- Private Mortgage Insurance
























