Overview
- 331212
- Property ID
- Updated On:
- April 20, 2026
- Independent Homes
- Category
- 2
- Bedrooms
- 4
- Bathrooms
- 1,800 ft2
- Property Size
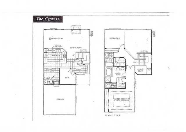
Description
SHARP END UNIT TOWNHOUSE IN POPULAR FAIRWAY CLUB.THE CYPRESS MODEL OVERLOOKS AN OPEN LAWN AREA & WILDFLOWER MEADOW. FRESHLY PAINTED IN NEUTRAL COLORS PLUS NEW CARPETING AND FLOORING THROUGHTOUT MAKE THIS HOME MOVE IN READY. THE SUNNY TWO STORY LIVING ROOM HAS A GAS LOG FP. WITH MANY WINDOWS FOR LOADS OF NATURAL LIGHT. THE DINING RM HAS A BUILT IN MIRRORED BUFFET AND SGD TO THE LARGE PRIVATE PAVER BRICK PATIO WITH A REMOTE CONTROL AWNING. THE ROOMY KITCHEN HAS 42″ CABINETS WITH CORIAN COUNTERS, PANTRY, SS APPLIANCES AND AN EAT IN AREA. THE DEN FEATURES CUSTOM BUILT BOOKCASES, DESK AND FRENCH DOORS. A SPACIOUS MASTER BR WITH TRAY CEILING, WIC, MBBATH WITH SOAKING TUB AND SHOWER. THERE IS A GUEST BEDROOM AND FULL HALL BATH. A VERY CONVENIENT 2ND FLOOR LAUNDRY WITH WASHER/DRYER INCLUDED. IN ADDITION THERE ARE THREE LOVELY CUSTOM STAINED GLASS WINDOWS. THE FULL FINISHED BASEMENT HAS A WET BAR AND SERVING COUNTER, 1/2 BATH AND PLENTY OF GOOD STORAGE.THERE ARE THREE BIG STORAGE ROOMS. FURNACE/CENTRAL A/C 2017 HOT WATER HEATER 2019. SS KITCHEN APPLIANCES 2018. NEW ROOF 2018. LOW ASSESSMENTS AND TAXES ….BE SURE TO VIEW THE VIDEO OF THE FAIRWAY CLUB NEIGHBORHOOD!
- Principal and Interest
- Property Tax
- HOA fee
- Private Mortgage Insurance

































