Overview
Description
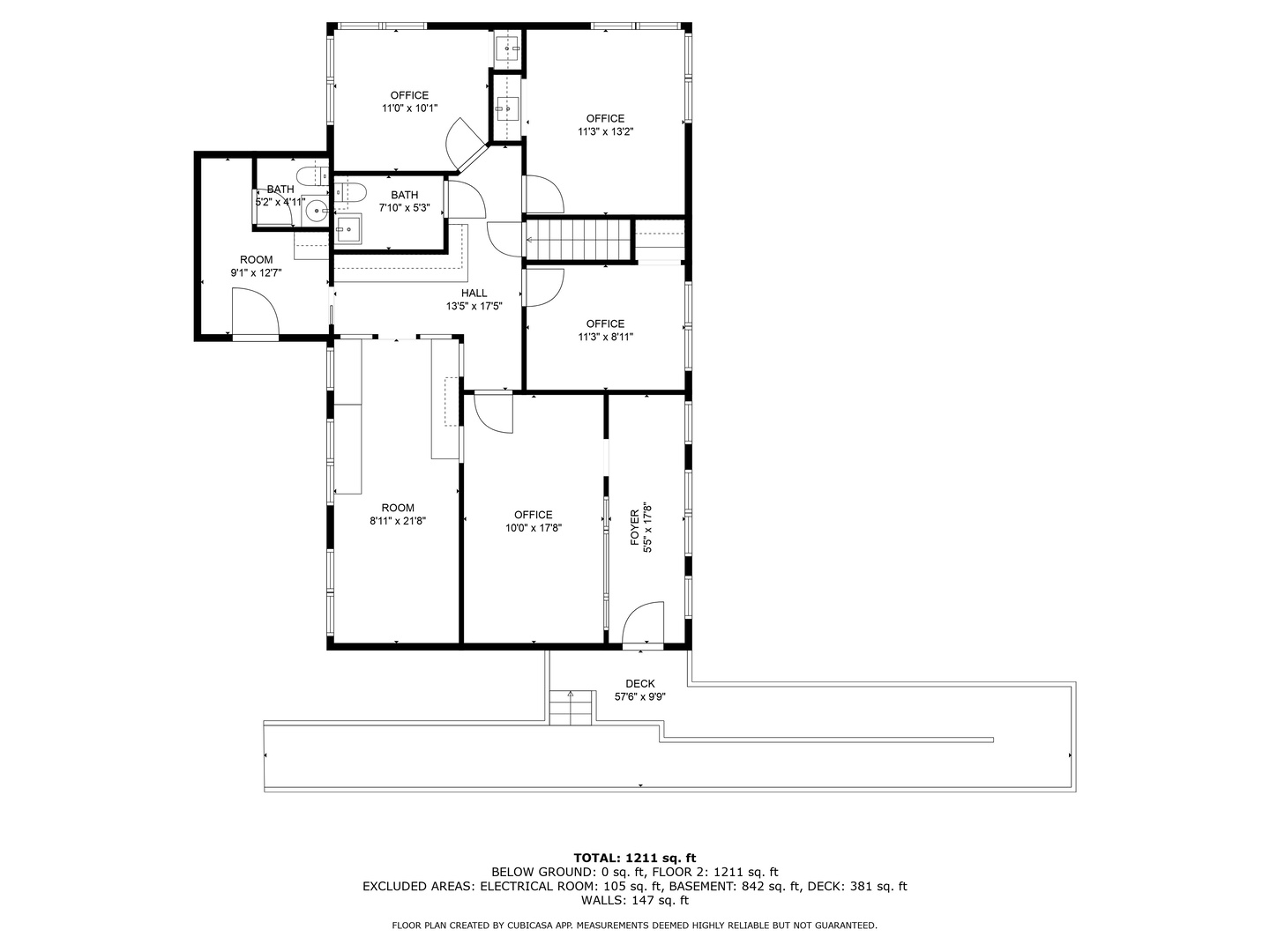
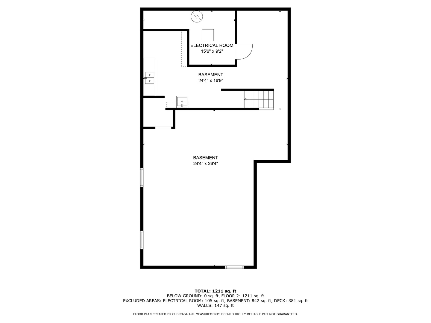
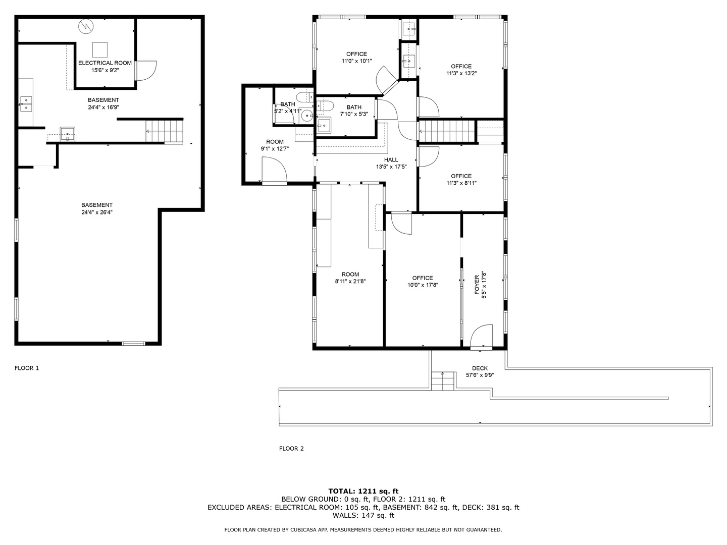
Freestanding office building with prime 55th Street exposure in desirable Clarendon Hills. Ideal for medical, dental, physical therapy, med spa/day spa, or professional office use. The main level offers approximately 1,215 SF with a flexible layout, including three (3) private offices with sinks and two (2) bathrooms, allowing for easy reconfiguration or additional offices. Situated on nearly 12,000 SF of land with 65 feet of frontage, the property provides excellent visibility and strong signage potential. An unfinished 947 SF basement offers storage or future expansion. 11+ on-site parking spaces ensure convenience for clients and staff. ADA-compliant ramp/decking on the east side of the building. Zoned O-T (Office Transitional). Available for purchase only. Ideal for an owner-user or investor seeking a high-exposure location.
- Principal and Interest
- Property Tax
- HOA fee
- Private Mortgage Insurance




















