21706 Gailene Avenue, Sauk Village, IL

$199,900

Overview

  • 333590
  • Property ID
  • Updated On:
  • April 20, 2026
  • 4
  • Bedrooms
  • 2
  • Bathrooms
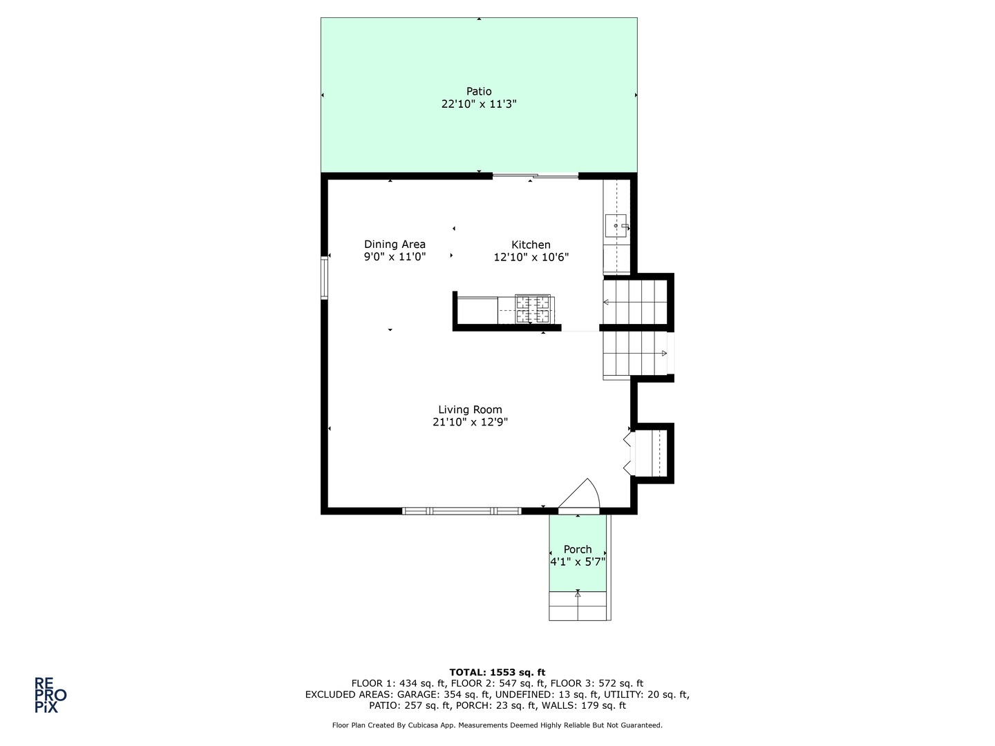
  • 1,553 ft2
  • Property Size
  • 0 ft2
  • Property Lot Size

Description

One or more photo(s) has been virtually staged. Welcome home! This stunning 4-bedroom, 2-bath single-family home in Sauk Village has been fully rehabbed and is ready for its next owner. Step into an open, refreshed layout filled with natural light and modern finishes. The inviting living room flows seamlessly into a stylish kitchen complete with Energy Star stainless steel appliances, quartz countertops, and plenty of storage for all your cooking essentials.

Bathrooms
2
Bedrooms
4
Climate Control
Air Conditioning
Heating
Floor Area
1,000-2,000 sqft
Parking
Garage
Swimming Pool
Yes
Other Features
Asphalt
Attached
Central Air
Frame
Natural Gas
Public
Public Sewer

yelp logo

$1,024.93
per month
  • Principal and Interest
  • Property Tax
  • HOA fee
  • Private Mortgage Insurance
$ 775.05

Similar Listings

For Sale

352 Bridgeview Court, St. Charles, IL

$420,000
Beds:
3
Baths:
3
Size:
1,827 ft2
Welcome to 352 Bridgeview Ct., a new townhome only lived in for a few months in the desira ...
For Sale

807 N Main Street, Glen Ellyn, IL

$175,000
Papa Saverio's Pizza Franchise for Sale - Glen Ellyn, IL Excellent opportunity to acquire ...
Information for the property at 21706 Gailene Avenue, Sauk Village, IL, 60411 (Property ID: 333590) is deemed reliable but not guaranteed. Property details, pricing, and availability are subject to change without notice. Buyers should independently verify all information before making any real estate decisions.

Compare Listings

Sunita Kakarlapudi