Overview
- 227504
- Property ID
- Updated On:
- April 19, 2026
- Independent Homes
- Category
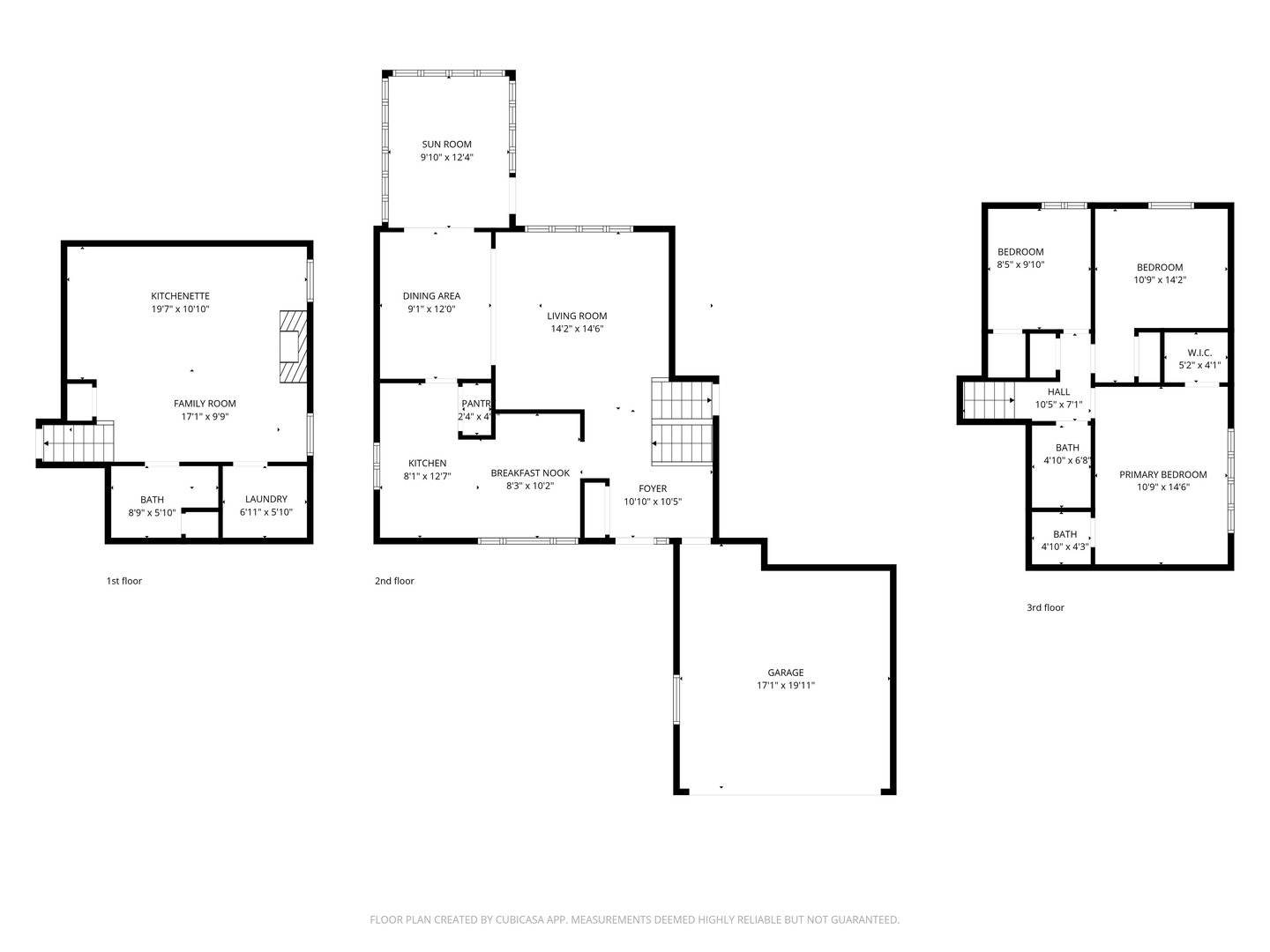
- 3
- Bedrooms
- 3
- Bathrooms
- 1,282 ft2
- Property Size
- 0 ft2
- Property Lot Size
Description
Enjoy peaceful water views and everyday comfort in this well-maintained 3-bedroom, 2.1-bath split-level home, perfectly situated across from Manitou Creek with access leading right to Fox Lake. Whether you’re sipping your morning coffee or unwinding at sunset, the setting offers a relaxing, nature-filled backdrop. A standout feature of this property is that you co-own, along with two neighbors, a portion of the lot directly across the street, complete with a floating pier-perfect for docking your water toys and enjoying easy access to the water whenever you please. Inside, you’ll find a functional layout with plenty of space to spread out. The lower level is a true highlight-featuring a cozy family room with a wood-burning fireplace equipped with a fan to help efficiently heat the home, a full bathroom, a dedicated laundry room, and a fantastic bar area complete with a wet bar and mini fridge-perfect for entertaining. Step into the inviting 3-season room complete with a hot tub for ultimate comfort. Outside, the generous yard provides plenty of room to enjoy, along with a great-sized shed for additional storage. Major updates bring peace of mind, including a brand new furnace and water softener (2025), A/C (2016), plumbing redone approximately 6 months ago, and a roof that’s only 3-4 years old. A great opportunity to enjoy space, comfort, and a scenic location-don’t miss your chance to call this one home!
- Principal and Interest
- Property Tax
- HOA fee
- Private Mortgage Insurance












































