Overview
- 398669
- Property ID
- Updated On:
- April 22, 2026
- Independent Homes
- Category
- 2
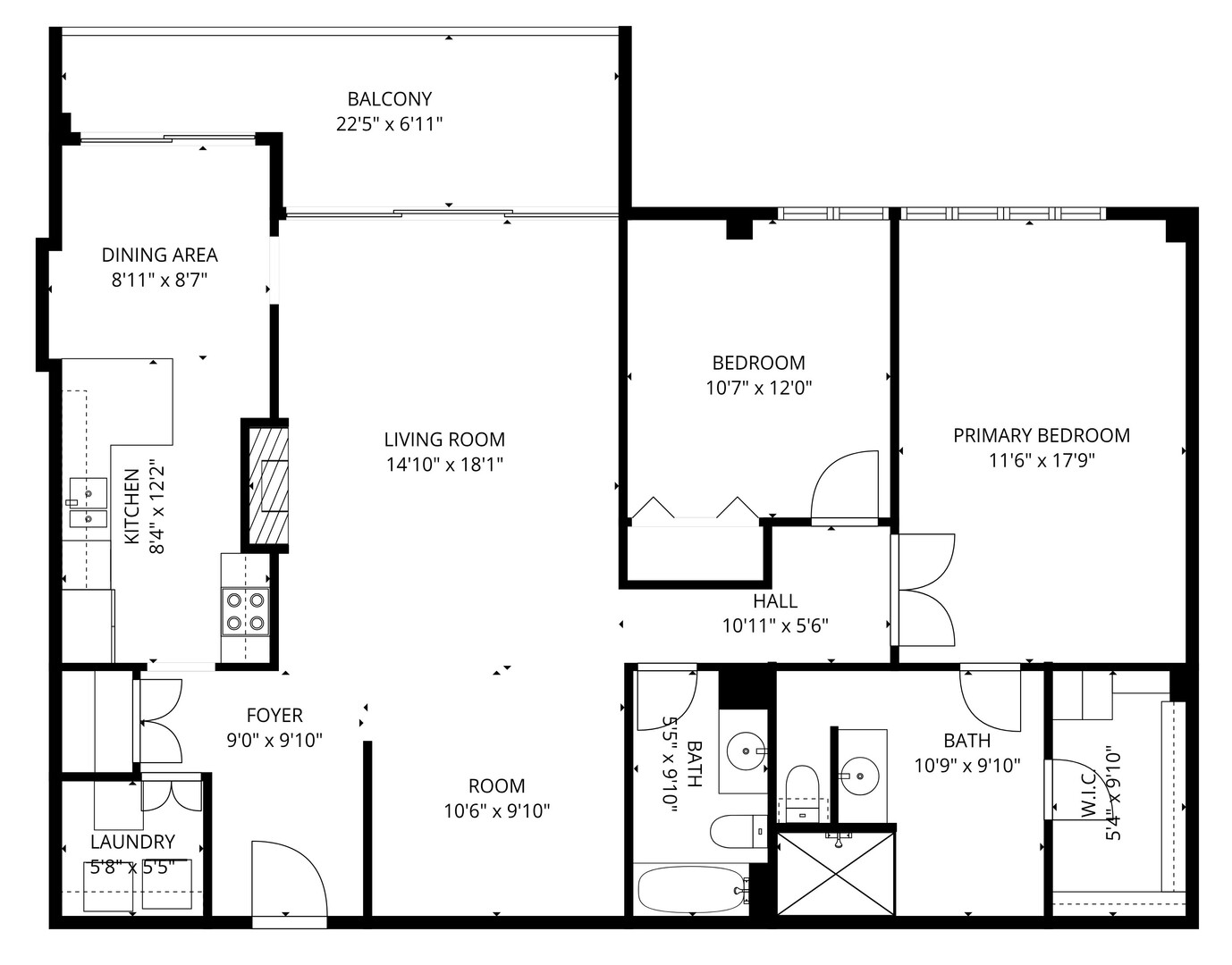
- Bedrooms
- 2
- Bathrooms
- 1,517 ft2
- Property Size
Description
Stunning, resort-style living in the highly desirable Park Lane complex! This spacious, updated 2-bedroom, 2-bath condo features a modern kitchen with granite counters and premium cabinetry, plus a sun-filled eat-in area. The kitchen flows seamlessly to an expansive 22-foot wide balcony-perfect for relaxing while overlooking the serene, professionally landscaped courtyard. The open floor plan boasts a large living room anchored by a cozy fireplace and a separate formal dining room. Retreat to the private primary suite featuring a massive walk-in closet and an oversized bathroom with a separate shower. Modern conveniences include an in-unit laundry room with a full-size washer & dryer. This premier gated community offers 24-hour security, a pool, tennis courts, an exercise room, guest suites, and a massive party room for entertaining. The attached garage includes two tandem parking spaces (#14), a car-wash area and a private storage locker (#157). Experience luxury and convenience just minutes from Uptown Park Ridge, the Metra, and expressways!
- Principal and Interest
- Property Tax
- HOA fee
- Private Mortgage Insurance
































