Overview
- 130501
- Property ID
- Updated On:
- April 2, 2026
- Independent Homes
- Category
- 3
- Bedrooms
- 2
- Bathrooms
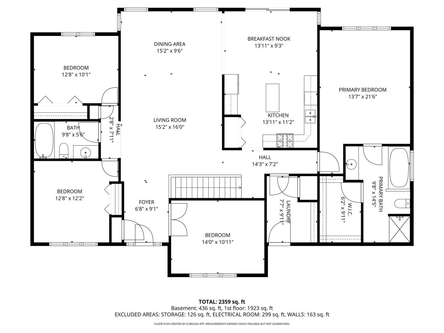
- 2,031 ft2
- Property Size
- 0 ft2
- Property Lot Size
Description
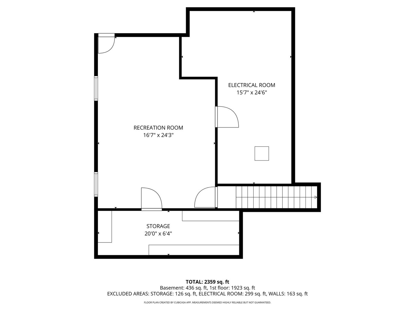
Welcome to 22123 Pembrook Dr in the highly desirable Heritage Knolls community! This all brick, true ranch is ready for new owners. Step inside to an inviting main level freshly painted in neutral colors and brand-new carpet in all bedrooms and the den. This well-designed home offers 3 spacious bedrooms, large flex room and 2 full baths, including a private primary suite complete with its own full bathroom and walk-in closet. High ceilings and abundant natural light from large windows create an open, airy feel throughout. The kitchen is functional and well designed boasting ample cabinetry, center island and a separate eating area perfect for everyday meals or casual gatherings. The partially finished basement adds valuable living space, along with two dedicated storage areas featuring built-in shelving. The oversized 2-car attached garage provides added convenience. Step outside to a spacious, fully fenced backyard with an oversized deck-ideal for entertaining, relaxing, or enjoying the outdoors. Nestled on a quiet, tree-lined street, this home offers the perfect blend of privacy and charm. Enjoy peace of mind with major updates already completed: a new roof (2019), new AC (2020), and upgraded triple-pane windows and sliding glass door (2008). Located within highly rated District 157C and Lincoln-Way East High School, minutes to HWY, this home truly has it all.
- Principal and Interest
- Property Tax
- HOA fee
- Private Mortgage Insurance









































