Overview
- 131942
- Property ID
- Updated On:
- April 2, 2026
- Independent Homes
- Category
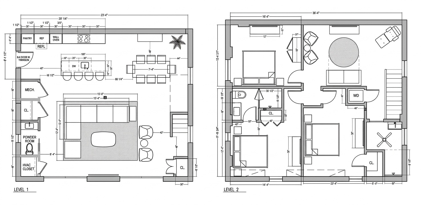
- 3
- Bedrooms
- 3
- Bathrooms
- 2,320 ft2
- Property Size
Description
Located at the rear of the historic Grand Kedzie Lodge, this private two-story coach house offers a rare single-family living experience in the heart of Logan Square. The 2,320-square-foot home was part of a complete 2023 restoration that converted a 19th-century mansion into a collection of modern residences. The main level features a massive open-concept living, dining, and kitchen area with heated concrete floors and tall ceilings, while the second level houses three spacious bedrooms and an additional family room. Unit features designer kitchen with quartz countertops, custom cabinetry, and stainless steel appliances, – Central HVAC, -In-unit washer/dryer. One offstreet parking spot is included in the rent.




























