Overview
- 142118
- Property ID
- Updated On:
- April 30, 2026
- Independent Homes
- Category
- 3
- Bedrooms
- 3
- Bathrooms
- 1,970 ft2
- Property Size
Description
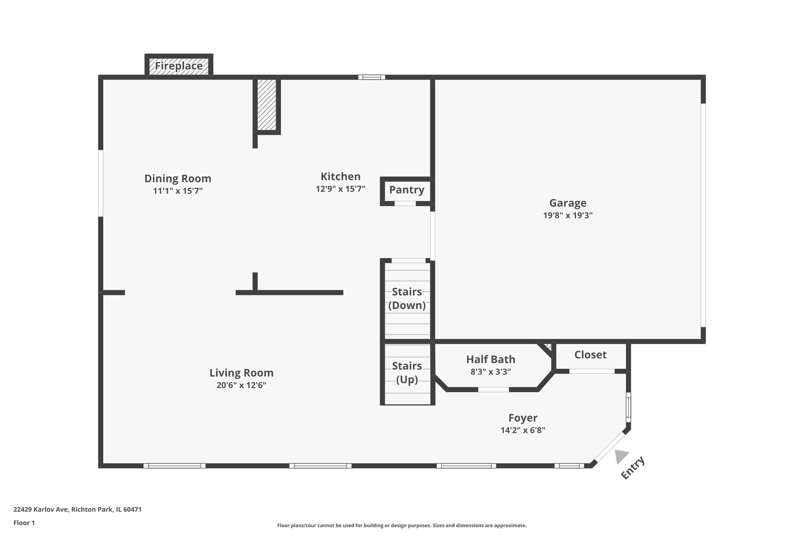
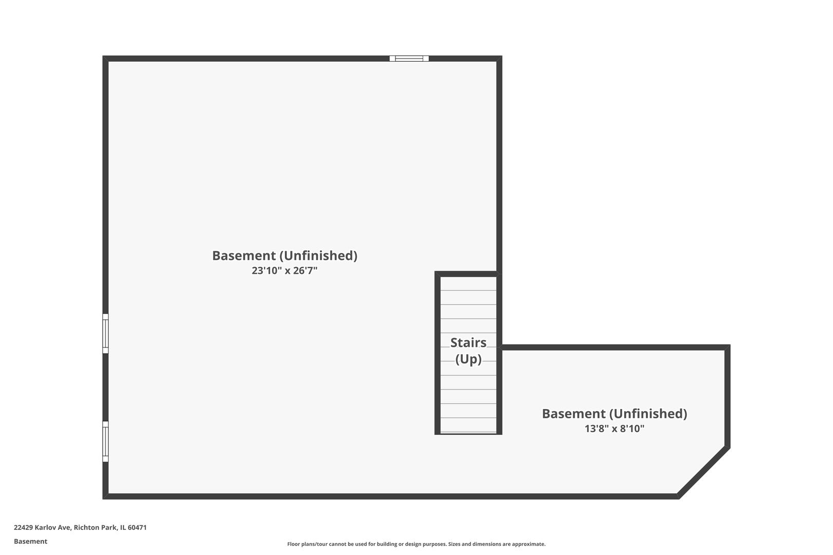
Looking for assistance? This home is IHDA Access Home Eligible for many buyers! This beautifully updated two-story brick home is ready for its new owners! The entry foyer welcomes you into the spacious living room and family room, featuring a cozy fireplace. The huge master bedroom includes a convenient second-floor laundry room. With an unfinished basement and a two-car garage, this property offers plenty of potential and storage. Previously a model home, it boasts a stunning kitchen with quartz countertops, shaker-style cabinets, and all stainless steel appliances. Enjoy all-new flooring, including luxury vinyl plank, fresh carpet, and warm, refinished hardwood floors. The interior showcases new paint, fixtures, and lighting throughout. Don’t miss the chance to explore the 3D tour with a floor plan and schedule your private showing today! Rich Township High School 227
- Principal and Interest
- Property Tax
- HOA fee
- Private Mortgage Insurance































