Overview
Description
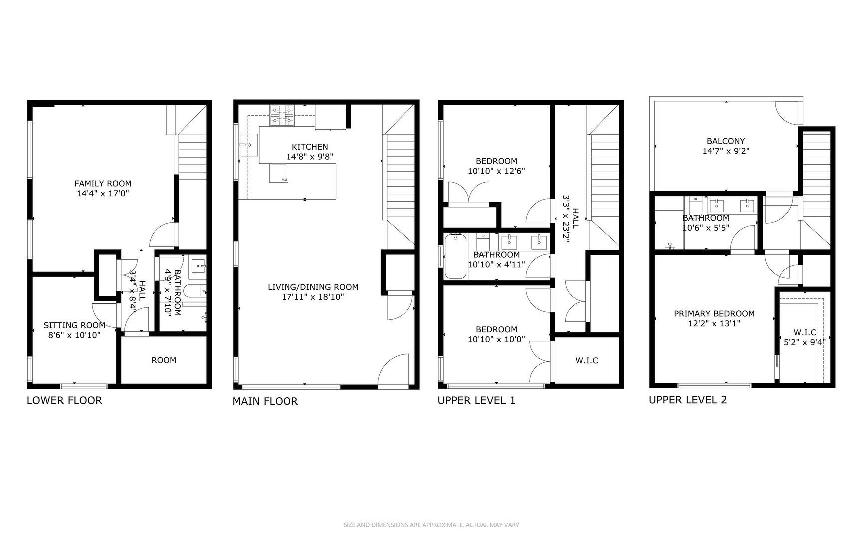
Built in 2020, this rarely available corner 4-bedroom, 3-bath townhome offers the feel of brand new construction in the heart of vibrant Logan Square. This front corner unit faces the park and features a large fenced yard, a rare find for townhome living. Thoughtfully designed with high-end finishes, exceptional attention to detail, and a beautifully landscaped private gated courtyard with dedicated green space, this home stands out from the moment you arrive. The main level features a dramatic lightwell entry and an open-concept kitchen with Bosch appliances, crisp modern finishes, and a stunning quartz breakfast bar overlooking the spacious living and dining area. The second floor includes two generously sized bedrooms with ample closet space, a large full bath with dual vanities, and a laundry room with side-by-side washer and dryer. The entire third floor is dedicated to the private primary suite, complete with a custom-built walk-in closet and a spa-like bath featuring a double vanity, walk-in shower, and heated floors. A private rooftop deck offers exceptional outdoor space and sweeping treetop views. The lower level provides a second living area, an additional bedroom, a full bathroom, and extra storage, making it ideal for guests, a home office, or a media room. Garage parking with an EV charger is included in the price. This home also overlooks Goethe Elementary School playground and park, and is just steps from neighborhood restaurants, shops, and minutes to the California Blue Line. Rockwell Square puts you close to everything Logan Square has to offer. Explore the property in 3D by clicking the virtual tour button and walking through every detail.
- Principal and Interest
- Property Tax
- HOA fee
- Private Mortgage Insurance



























