Overview
- 74227
- Property ID
- Updated On:
- April 1, 2026
- Independent Homes
- Category
- 5
- Bedrooms
- 3
- Bathrooms
- 2,510 ft2
- Property Size
Description
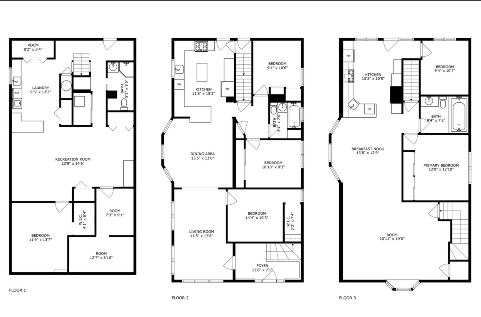
Fabulous Farmhouse Situated along Grove street and just 3 blocks from downtown Lombard and its many shops, restaurants’, Lilacia Park, The Metra, and so much more! Open and bright, the first floor features an open kitchen, living and dining room along with 3 bedrooms and 1 bath. There is a finished basement which lends itself to being used as a second living space for the first floor unit. Combined, the first floor and basement offer 4 bedrooms, 2 full baths. This is a wonderful home, and an ideal set up for those who have extended family or just want to share a home with a level of independence and separation. The second level offers open kitchen equipped with a breakfast bar, stainless steel appliances, and separate pantry closet with pull-out shelving. There is a massive dining room which also opens to the living room and it’s beautiful vaulted ceilings accentuated with exposed wood beams. there are two bedrooms, a full bathroom, and a large dedicated private deck . Outside there is a full side yard and a patio finished in flagstone, and fire pit. There is a driveway which leads to a 2 car garage as well as serving for additional guest parking.
- Principal and Interest
- Property Tax
- HOA fee
- Private Mortgage Insurance











































