Overview
Description
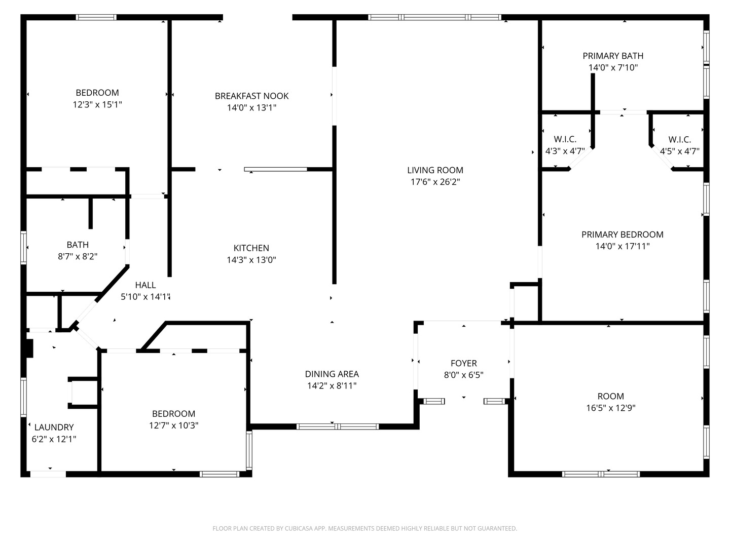
55+ and over Gateway Community. Largest model available! This triple wide has been lovingly maintained. Solid 2×6 construction, all drywall and insulated. This model offers 2400 square feet of living space. Front deck to enjoy coffee in the morning, the back deck off the kitchen for evening dinners and relaxing. Nicely landscaped with blooming shrubs and an oversized 2 car garage. Huge concrete driveway for parking and guests. Roof 2013, softener 2024, water heater about 4 years old, most blinds are new, new kitchen faucet. All appliances stay. Requires park approval.
- Principal and Interest
- Property Tax
- HOA fee
- Private Mortgage Insurance
























