Overview
- 322182
- Property ID
- Updated On:
- April 20, 2026
- Independent Homes
- Category
- 4
- Bedrooms
- 2
- Bathrooms
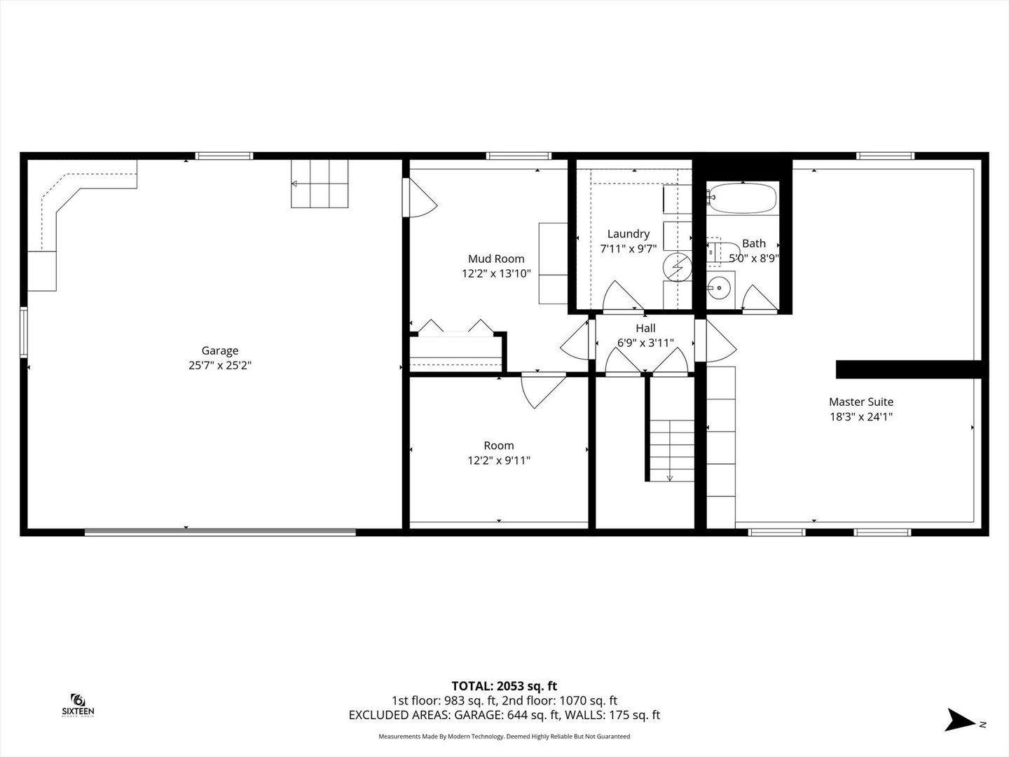
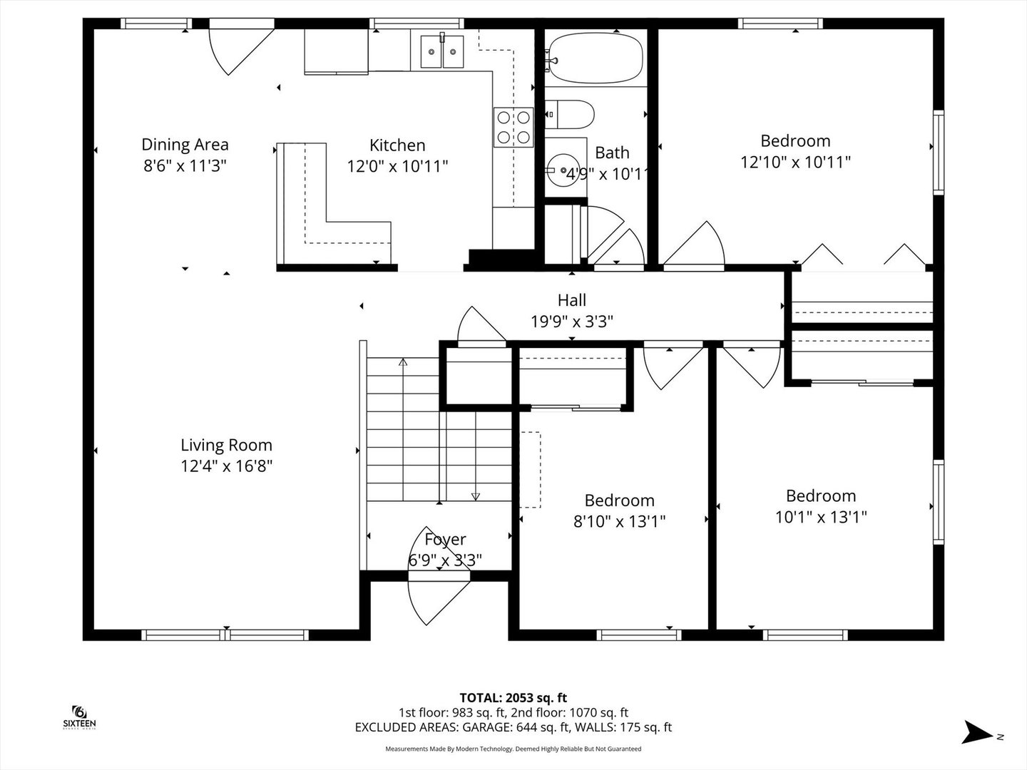
- 2,053 ft2
- Property Size
- 0 ft2
- Property Lot Size
Description
Move-in ready Stratford Park home offering space, updates, and a great southwest Champaign location. This 4-bedroom, 2-bath home features over 2,000 square feet with a flexible layout that includes a big living room, flexible basement, and an added hobby or workspace. The oversized 2.5-car garage provides excellent storage and room for projects. Major improvements include a new roof (2020), gutters (2019), radon mitigation system (2019), solar panels (2023), and a new furnace and A/C (2025). The solar system has transferable financing of approximately $200/month, with average electric costs around $50/month, keeping total energy expenses comparable to or lower than many homes. The home has been pre-inspected for the buyer’s convenience. Situated on a corner lot with mature trees and a fenced backyard. Conveniently located near Centennial Park, Sholem Pool & Waterpark, shopping, bus lines, and just a short 10-12 minute drive to the University of Illinois campus.
- Principal and Interest
- Property Tax
- HOA fee
- Private Mortgage Insurance














































