Overview
- 346947
- Property ID
- Updated On:
- April 20, 2026
- Residential Homes
- Category
- 3
- Bedrooms
- 3
- Bathrooms
- 1,588 ft2
- Property Size
Description
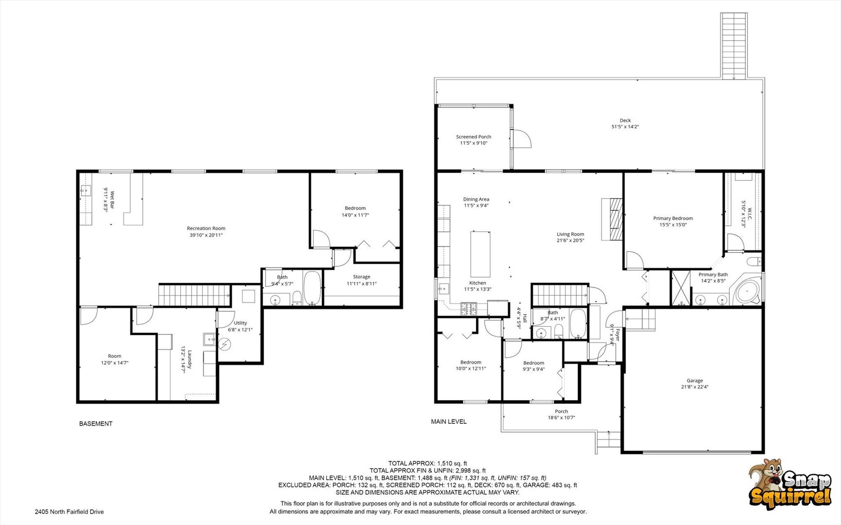
Welcome home to this 4BD/3BA split floor plan ranch with a finished basement in Landis Farm Subdivision, offering space, comfort, and flexibility. The main level features hard-surface flooring throughout and a bright kitchen with a large quartz island, eating area and wine fridge, perfect for everyday living and entertaining. The primary suite includes a dual vanity, jetted tub, tiled walk-in shower and walk-in closet. The fully finished basement expands your living space with a large recreation area, a kitchenette, 3rd full bath, 4th bedroom, wine room, and an impressive laundry area. Enjoy mornings or evenings in the screened-in porch, which opens to a Trex deck spanning the full length of the home. The quiet subdivision has no through traffic and offers easy access to I74, downtown Urbana, restaurants shopping and more. Roof 2020, Trex deck/screened porch 2021, other mechanicals original to home. Home has been pre-inspected.
- Principal and Interest
- Property Tax
- HOA fee
- Private Mortgage Insurance










































