Overview
- 169376
- Property ID
- Updated On:
- April 10, 2026
- Independent Homes
- Category
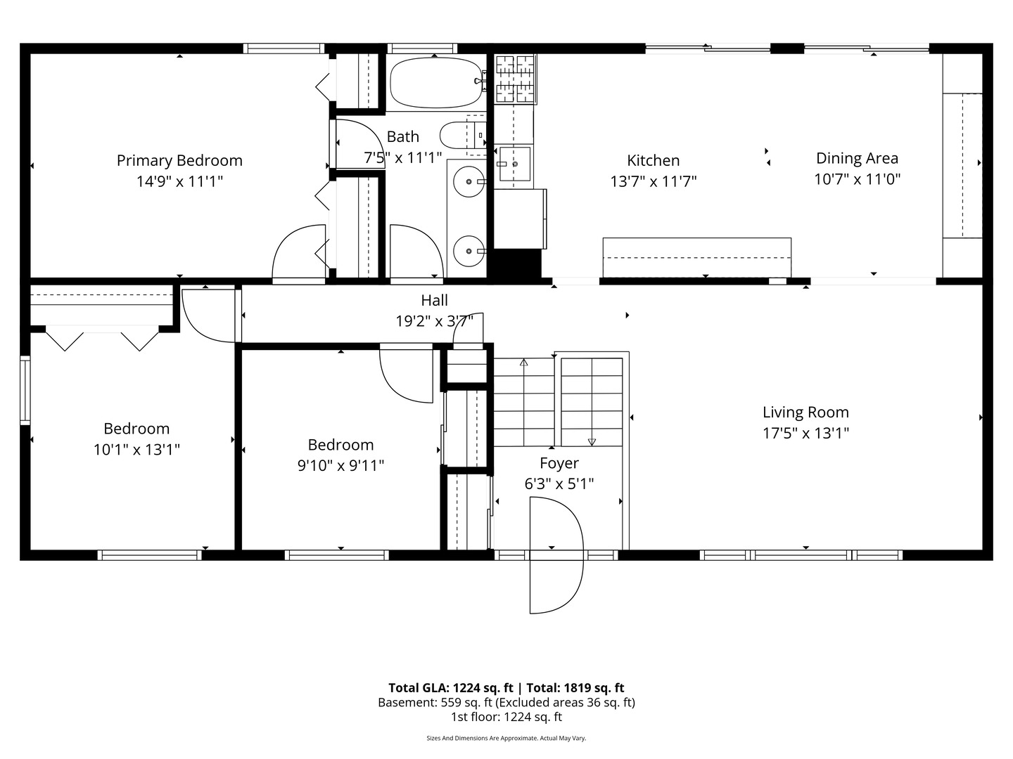
- 4
- Bedrooms
- 2
- Bathrooms
- 1,872 ft2
- Property Size
Description
Welcome home to this impeccably maintained 4-bedroom Raised Ranch, perfectly situated on a quiet, tree-lined street. The open-concept main level shines with durable wood-laminate flooring and an abundance of natural light. At the heart of the home, you’ll find a massive eat-in kitchen boasting extensive storage and elegant French doors that lead directly to your private deck-ideal for summer BBQs in the beautiful backyard. The finished lower level adds incredible living space, featuring a cozy fireplace in the family room, a generously sized fourth bedroom, and an updated full second bath. Most major mechanicals were updated recently (HWH 2026, AC 2018 and Furnace 2022) providing peace of mind and comfort. Enjoy the ultimate convenience with easy access to I-355, I-88, the Belmont Metra station, and the vibrant shops and dining of downtown Downers Grove. The cherry on top is the fabulous schools including sought after Downers Grove North. Don’t wait – make this fabulous house your home!
- Principal and Interest
- Property Tax
- HOA fee
- Private Mortgage Insurance






















