Overview
- 216319
- Property ID
- Updated On:
- April 19, 2026
- Independent Homes
- Category
- 3
- Bedrooms
- 2
- Bathrooms
- 1,600 ft2
- Property Size
- 0 ft2
- Property Lot Size
Description
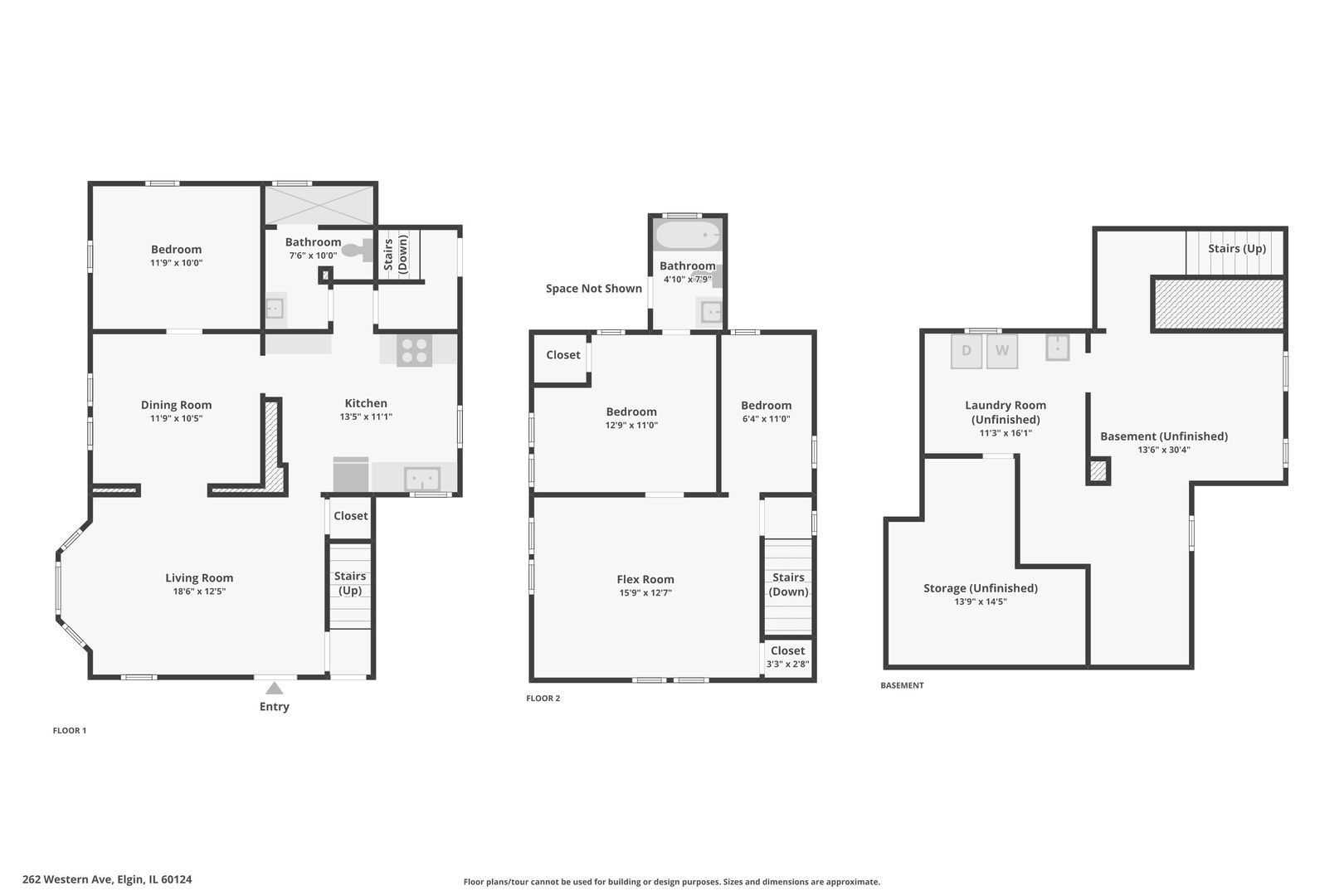
Great value to be had on this 2-story home that has excellent bones! Currently rented and you will need to see past all the personal items to realize the amount of space this house really has. Situated on a bigger lot than expected with an oversized detached 1.5 car garage. Large fenced backyard with plenty of green space. Many updates over the years including new windows. The last 3 photos include floorplans for each level. Basement alone offers an additional 900+/-SF. 3 bedrooms and 2 full baths. Located walking distance to Larkin HS and close to Elgin Community College. Lots of hardwood floor in the main level that could really shine. Will require some TLC to make this home perfect! Property taxes do not reflect any homestead discount. Seller is motivated and looking for a solid offer. Agents please email LA for photos of home prior to occupancy on renter. Property needs prior day notice for showings.
- Principal and Interest
- Property Tax
- HOA fee
- Private Mortgage Insurance

































