Overview
- 340216
- Property ID
- Updated On:
- April 20, 2026
- Independent Homes
- Category
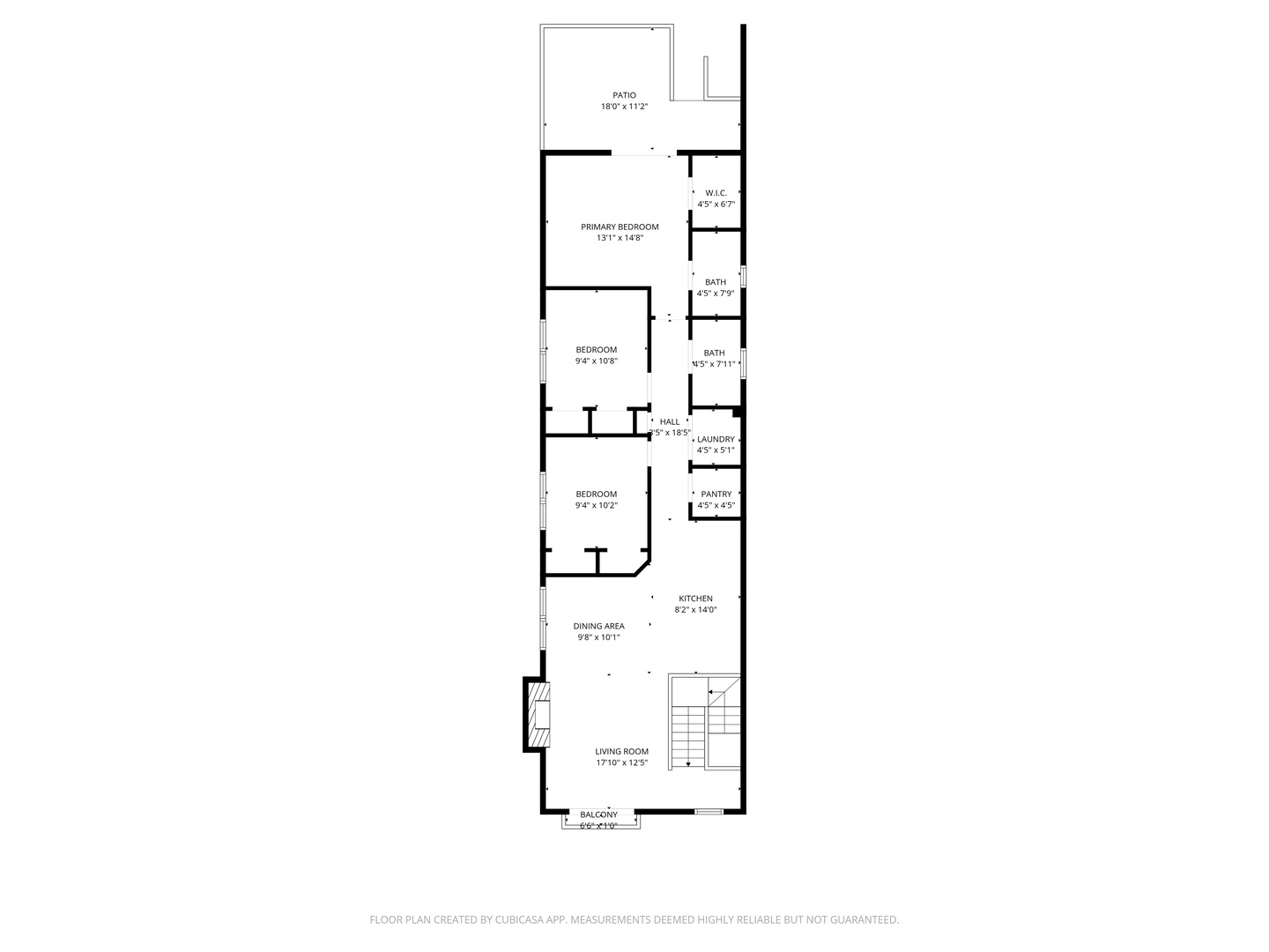
- 3
- Bedrooms
- 2
- Bathrooms
- 1,200 ft2
- Property Size
Description
Penthouse Perfection in the Heart of Chicago! Experience sophisticated city living in this exceptionally designed 3-bedroom, 2-bath top-floor unit featuring vaulted ceilings, skylights, and hardwood floors throughout. The modern kitchen boasts brand-new glass-finish appliances, sleek granite countertops, and an open floor plan that flows seamlessly into the bright living area with a Juliet balcony, gas fireplace, and an attached brand-new television for a move-in-ready feel. The primary suite includes a private bath and a spacious walk-in closet with custom organizers, while two additional large bedrooms and a second bathroom finished in soft, contemporary tones offer comfort and style. Enjoy the convenience of an in-unit side-by-side washer and dryer, tankless water heater, and a newer air conditioning unit. Relax or entertain on your huge private rear deck, and take advantage of one secured outdoor parking space. Perfectly situated near Green and Blue Line stops, United Center, shopping plazas, I-290, and the Fulton Market entertainment district – just minutes from Downtown Chicago. A truly unique and rare find – this home has it all.
- Principal and Interest
- Property Tax
- HOA fee
- Private Mortgage Insurance



































