Overview
- 430391
- Property ID
- Updated On:
- April 23, 2026
- Independent Homes
- Category
- 2
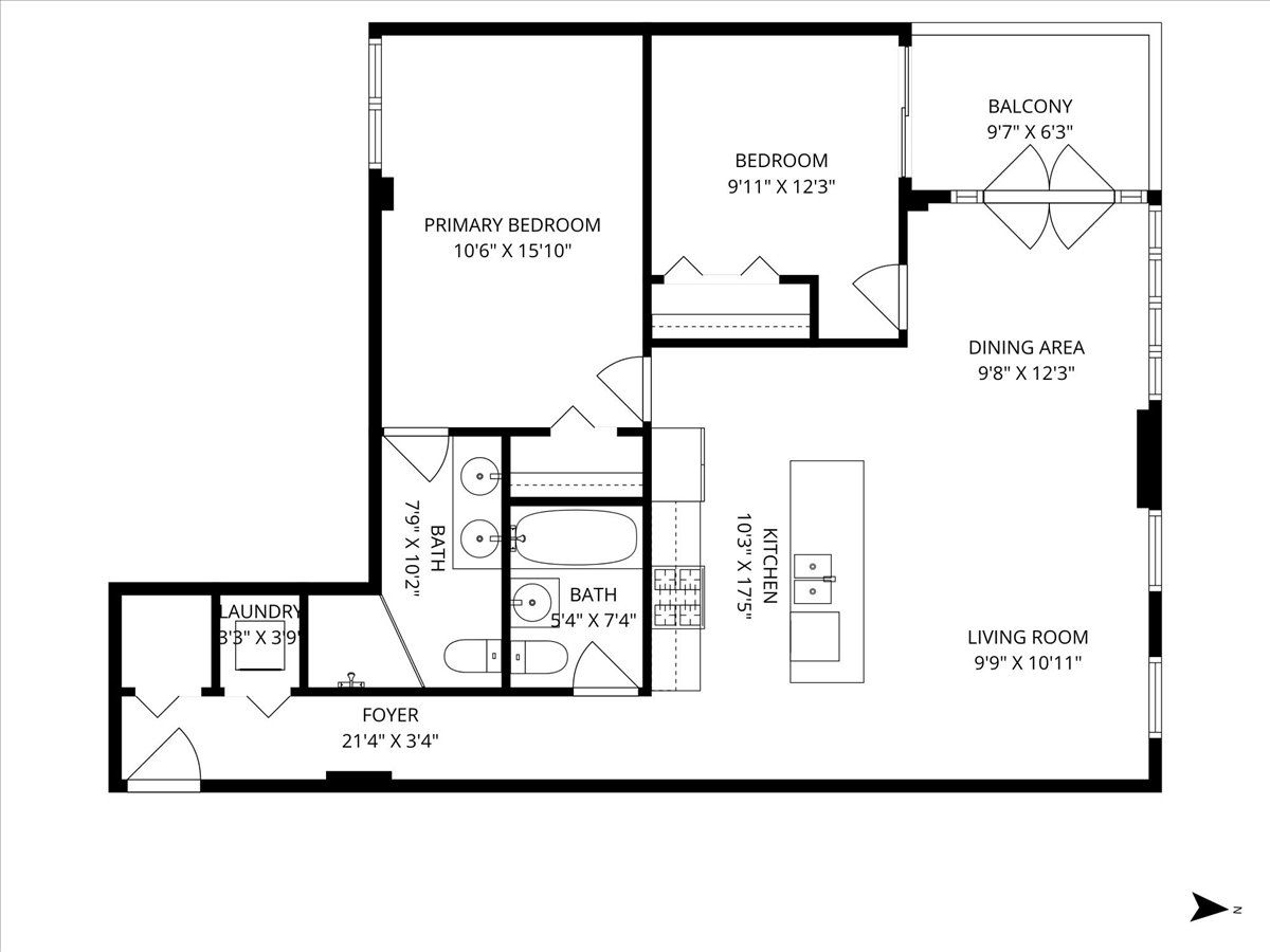
- Bedrooms
- 2
- Bathrooms
- 1,100 ft2
- Property Size
Description
Rare corner penthouse offering two bedrooms and two bathrooms in an intimate boutique five story elevator building. This bright, top-floor home features a private balcony with sweeping north and west exposures, plus a glimpse north east of the city. A welcoming entry hallway opens into an airy layout with soaring ceilings. The modern kitchen is designed for both style and function, complete with stainless steel appliances, granite countertops, and a spacious island ideal for cooking or entertaining. The primary suite includes a private bath with dual vanities and a whirlpool tub. Additional highlights include in-unit laundry, extra storage, a separate mechanical room that helps minimize noise for a quieter living experience, and a heated attached deeded garage parking space included in the price. Located in a vibrant area along the hip Elston/Belmont corridor, you’re close to popular dining, shopping, and entertainment, as well as the scenic North Branch Riverwalk Trail, and within walking distance to Roscoe Village. Low monthly assessments and taxes make this home an exceptional value.
- Principal and Interest
- Property Tax
- HOA fee
- Private Mortgage Insurance
























