Overview
- 263022
- Property ID
- Updated On:
- April 19, 2026
- Independent Homes
- Category
- 5
- Bedrooms
- 5
- Bathrooms
- 4,400 ft2
- Property Size
Description
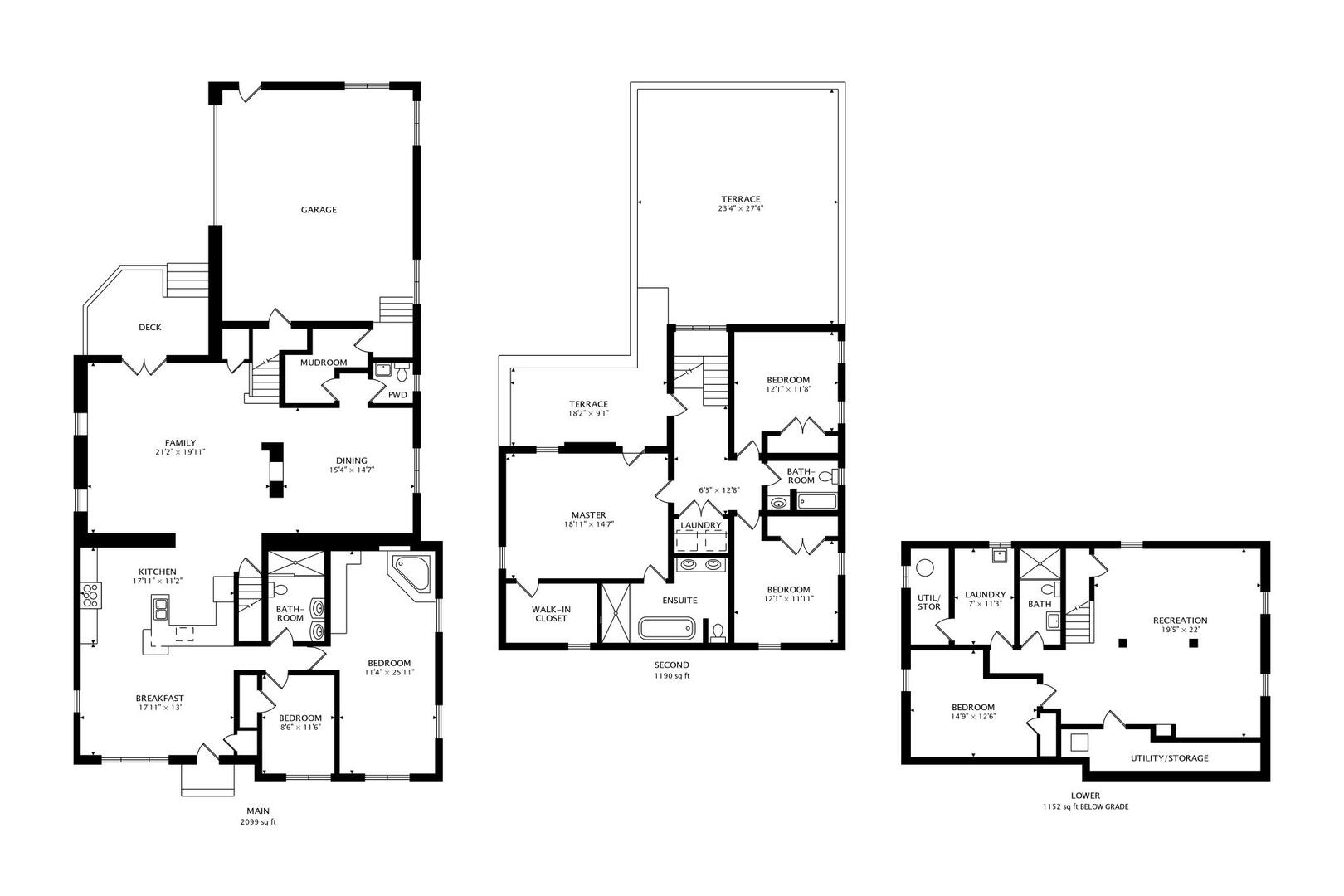
Glenview! Opportunities like this don’t come around often-fully updated and located in sought-after school district District 34. This impressive home at 2824 Central Rd offers 6 bedrooms, 4 1/2 bathrooms, and over 4,400 square feet of living space, including a finished lower level and 3 car attached garage. Flexible first floor options to fit your lifestyle…use as TWO FIRST FLOOR BEDROOMS or HOME OFFICES and or IN-LAW ARRANGEMENT. First floor includes first floor full bath plus powder room. The home backs to Glenview Park Golf Course with open fairway views, creating a serene setting. The outdoor space is designed for enjoyment and entertaining, featuring a huge roof deck/terrace ready for your summer parties overlooking the golf course. The kitchen is equipped with a Thermador oven and hood, stainless steel appliances, an eat-in area and large adjacent sun-filled Breakfast Room. Kitchen flows into the main living space which includes large Family Room, highlighted by a two-sided stone gas fireplace connecting the family room and dining room. Don’t miss the attached and heated 3 car garage with Storage area for your every day needs. Second level features a spacious primary suite with private terrace, dual vanities, separate shower, soaking tub, and walk-in closet. Two additional bedrooms and a full bath complete the 2nd floor along with convenient second-floor laundry. Finished lower level includes a large recreation area, additional bedroom/craft room, full bath, and second laundry area. Basement has drain tiles and sump pump. 75 Gallon water heater. 400 Amp Electrical. Generac backup generator! Available now.
- Principal and Interest
- Property Tax
- HOA fee
- Private Mortgage Insurance
















































