Overview
Description
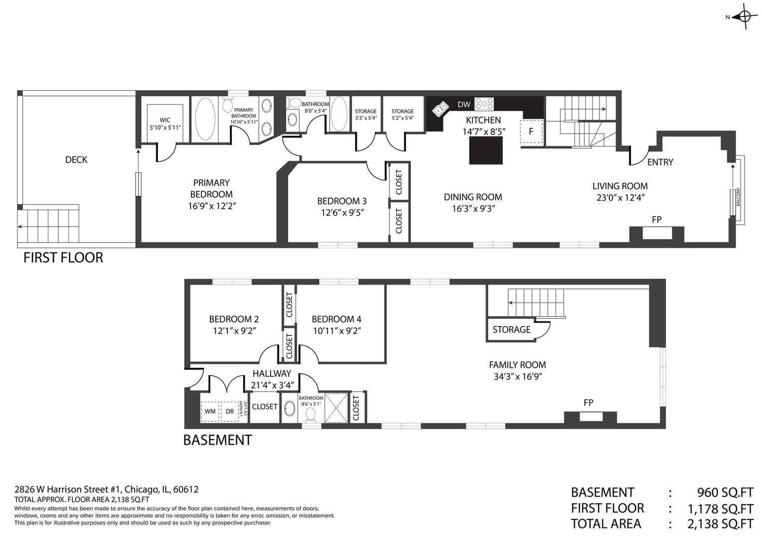
Spacious 4-bedroom, 3.5-bath duplex-down in a well-maintained, all-brick 3-unit building. This thoughtfully updated home offers generous living space across two levels, with refinished hardwood floors (July 2025) and a freshly updated kitchen featuring granite countertops, stainless steel appliances, a center island, and new garbage disposal. The main living area is anchored by a cozy fireplace and flows seamlessly for both everyday living and entertaining. Both full bathrooms on the main level were updated in 2025, while the expansive lower level offers soaring 10-foot ceilings, luxury vinyl plank flooring, a large family room with a second fireplace, two spacious bedrooms, a full bath, laundry room, and excellent storage. Additional features include ample parking included, a private deck, front-load washer/dryer (2021), hot water tank (2022), and gas stove (2021). The primary suite offers a whirlpool tub and double vanity. All the space you need, modern updates where it counts, and convenient access to everything the city offers. 3 tandem parking spots come with the unit!
- Principal and Interest
- Property Tax
- HOA fee
- Private Mortgage Insurance
























