28w583 Stafford Place, Warrenville, IL

$2,400

Overview

  • 61489
  • Property ID
  • Updated On:
  • March 31, 2026

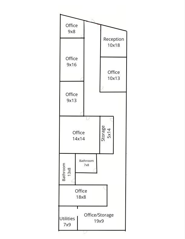
Description

Stand Out! In the Heart of a Rapidly Growing Community (Warrenville). Capture the Organic Onlookers Traveling “In-Town”, Town to Town or Across the State via Illinois Prairie Path. Personal/Separate Business Signage Facing Butterfield Rd. & Batavia Rd. Stop Light. Be the Backdrop to the Warrenville Community Events Sign. Ample Public & Private Parking. Center of Community Festivals like “Art on the Prairie”, Start of the 4th of July Parade, “Summer Days”, and MANY MORE Community Engagement Events. City Center Intersection Shared with Public Library, City Hall, Police Station, Post Office, Wine Bar with Outdoor Patio, Art Studio, Bicycle Shop, Salons, Medical Offices, Park District Gym&Theater, and Community Outreach Businesses. Kitty-Corner from Blackwell Forest Preserve.

Climate Control
Air Conditioning
Other Features
All Utilities
Block
Brick
Carpet
Central Air
Circuit Breakers
Combination
Concrete
Concrete Perimeter
Electricity
Heat
Insurance
Sewer
Wood

Transport
Supermarkets
Schools
Restaurants
Pharmacies
Hospitals

yelp logo

Similar Listings

For Rent

2632 W Touhy Avenue, Chicago, IL

1,850 SF Office/Retail space, located in a trending neighborhood near Rogers Park, on Touh ...
For Sale

5636-48 W Division Street, Chicago, IL

$1,690,000
This 33-unit mixed-use property, a bank-owned asset in Chicago's thriving North Austin nei ...
Information for the property at 28w583 Stafford Place, Warrenville, IL, 60555 (Property ID: 61489) is deemed reliable but not guaranteed. Property details, pricing, and availability are subject to change without notice. Buyers should independently verify all information before making any real estate decisions.
🚧 Our website is under development. We are working hard to bring you better eperience ,please check back soon!

Compare Listings

Sunita Kakarlapudi