Overview
- 399942
- Property ID
- Updated On:
- April 24, 2026
- Independent Homes
- Category
- 2
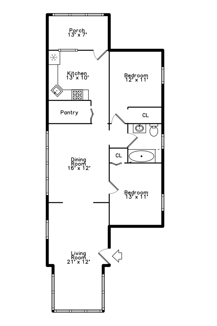
- Bedrooms
- 1
- Bathrooms
- 1,225 ft2
- Property Size
Description
Bright and roomy 2bed/1bath apartment in Avondale! A total gut rehab in 2023 with upgrades galore. Highlights include central air and heat, new electrical and lighting, new plumbing, new stainless steel appliances and cabinets, newly sanded and stained hardwood flooring, new bathroom with soaking tub and shower. Both bedrooms feature deep walk-in closets. The floorplan includes a spacious formal dining room and living room combo. This apartment has tons of storage including a huge kitchen pantry and the finished and enclosed rear back porch. Coin laundry is in the building and the landlord prefers no pets. Landlord would like a 650+ credit score and 3X rent income, past landlord references. $800 non-refundable move-in fee and first month’s rent due at signing. Excellent location with all Avondale has to offer right close by such as Cermak Fresh Market, Warlord and Avondale Bowl. Public transit is close by via the 76 and 53 bus routes.

















