Overview
- 133568
- Property ID
- Updated On:
- April 2, 2026
- Independent Homes
- Category
- 3
- Bedrooms
- 3
- Bathrooms
- 1,717 ft2
- Property Size
Description
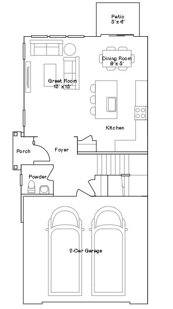
SPECIAL FINANCING OFFERS AVAILABLE! READY FOR APRIL DELIVERY!! Homesite# 1806. Enter a sanctuary of comfort and charm in this stunning Darcy model. This three-bedroom, two-and-a-half-bathroom townhome showcases a striking contemporary design, thoughtfully crafted for modern living. The main level boasts an open-concept layout where the kitchen, great room, and dining area flow together seamlessly. Notable kitchen features include a spacious center island, sleek quartz countertops, ample cabinetry, a undermount sink, and top-of-the-line stainless steel appliances. Elegant touches-such as two-panel interior doors, classic colonist trim, luxury vinyl plank flooring, and energy-efficient LED lighting-further enhance the home’s appeal. Perched on the second floor, a spacious, the light-filled loft offers a heightened sense of openness and possibility. Whether imagined as a home office, an inspiring creative studio, or a cozy reading nook, this adaptable space meets your needs with style. Completing the upstairs are three inviting bedrooms, including a luxe owner’s suite designed for ultimate comfort and sophistication. The owner’s suite offers a private retreat with a spacious walk-in closet, and a spa-inspired deluxe shower-your personal haven after a long day. *Photos are not this actual home* This is an end unit home next to a playground. Tucked into a peaceful and walkable neighborhood, the Oaks of Volo offers a perfect blend of comfort, community, and convenience. This thoughtfully designed community features both traditional and urban townhomes surrounded by green open spaces, winding walking paths, and a centrally located park and playground – ideal for families and outdoor enthusiasts alike. Living in Volo means enjoying a serene suburban lifestyle with easy access to nature. Residents are just minutes from the expansive Moraine Hills State Park, where hiking, biking, and bird-watching await. You’ll also find plenty of recreation options through the Round Lake Area Park District, including sports fields, aquatic centers, and year-round community events. Whether you’re enjoying a quiet stroll through the neighborhood or exploring the surrounding natural beauty, Oaks of Volo offers the perfect setting to unwind, connect, and feel right at home.
- Principal and Interest
- Property Tax
- HOA fee
- Private Mortgage Insurance
























