Overview
- 119691
- Property ID
- Updated On:
- April 2, 2026
- Independent Homes
- Category
- 3
- Bedrooms
- 3
- Bathrooms
- 1,764 ft2
- Property Size
Description
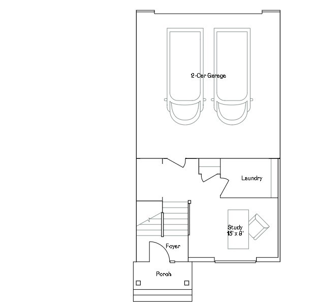
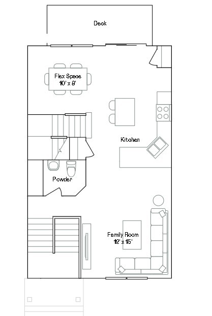
READY FOR SUMMER DELIVERY!! Homesite# 3302. Discover the Amherst, a refined three-story urban townhome offering three bedrooms, two full baths, and a half bath-perfectly tailored for modern living. The main level boasts a bright, open-concept layout that includes a spacious great room, elegant dining area, and a stunning kitchen with an oversized quartz island, 42″ upper cabinets, stainless steel appliances, and a walk-in pantry. Upstairs, enjoy a serene owner’s suite featuring a walk-in closet and spa-like bath with dual white undermount bowls and a walk-in shower. Two additional bedrooms, a full bath, and a second-floor laundry room complete the upper level. The entry-level flex space provides versatile functionality – ideal as a home office, workout room, or media space. Throughout the home, luxury vinyl plank flooring, quartz countertops, LED lighting, and decorative railings elevate the aesthetic. *Photos are not this actual home* Experience the perfect blend of comfort, convenience, and outdoor living at Abbey Meadows, a charming new community offering low-maintenance townhomes in the vibrant suburbs of Aurora, Illinois. Thoughtfully designed for effortless living and a love of nature, Abbey Meadows delivers a lifestyle centered on relaxation, recreation, and meaningful community connection. This thoughtfully planned neighborhood will feature a scenic park and playground with comfortable seating areas to enjoy fresh air and the natural surroundings. Downtown’s River Edge Park offers outdoor festivals, an amphitheater, and scenic trails along the Fox River, making it a go-to destination for entertainment and relaxation. For shopping enthusiasts, the Chicago Premium Outlets is a premier open-air retail center featuring more than 170 designer brands, seasonal events, and unbeatable deals. Golfers will love the nearby Orchard Valley Golf Course, a beautifully maintained 18-hole championship course perfect for both casual and competitive play, complete with a welcoming clubhouse for dining and socializing. Whether you’re enjoying a quiet walk through green space or spending the day exploring downtown Aurora, Abbey Meadows is where peaceful suburban living meets a vibrant, active lifestyle.
- Principal and Interest
- Property Tax
- HOA fee
- Private Mortgage Insurance


























