Overview
- 297299
- Property ID
- Updated On:
- April 19, 2026
- Independent Homes
- Category
- 4
- Bedrooms
- 2
- Bathrooms
- 2,287 ft2
- Property Size
Description
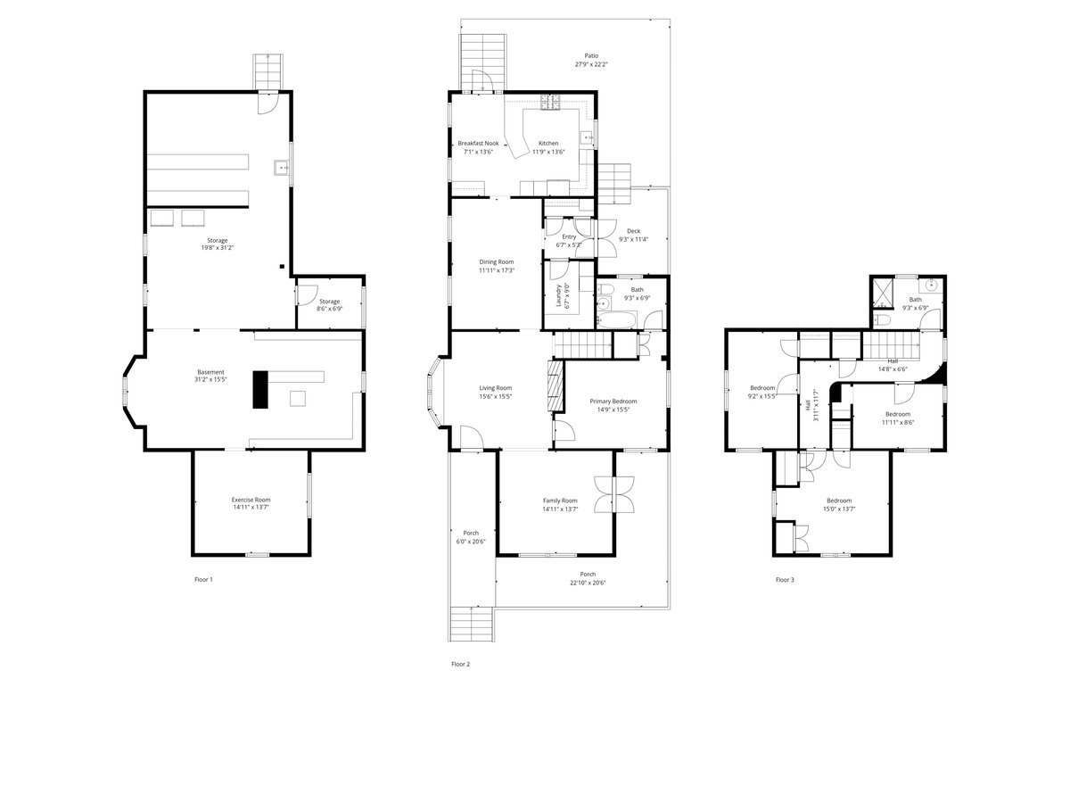
A rare and beautifully preserved Italianate residence built in 1871, this extraordinary home is a true testament to thoughtful restoration and architectural integrity. Guided by acclaimed architect John Thorpe, the property has been meticulously returned to its original elegance while offering refined, updated spaces for modern living. From the moment you enter, the home is defined by light, scale, and authenticity. Stunning windows illuminate each room, creating spaces that feel intentional, warm, and quietly impressive. The entry opens to an inviting family room framed by bay windows and anchored by a wood-burning fireplace. An elegant archway leads to a gracious living room overlooking the wraparound front porch, where French doors create a seamless connection between indoor and outdoor living. The main level features a flexible and generously sized primary suite-currently used as a den-with an ensuite full bath. A formal dining room provides an ideal setting for entertaining and flows effortlessly into the light-filled kitchen. Here, historic charm meets culinary excellence with a chef’s kitchen featuring a Sub-Zero, large gas range, original farmhouse sink, abundant cabinetry, and a charming eat-in area, all with views of the garden and backyard. The first floor also offers a dedicated laundry area with adjoining office space and excellent storage. The second level includes three distinctive bedrooms, each showcasing original transom windows, trim, and woodwork, along with a beautifully updated full bath. Natural light fills each space, enhancing the home’s historic character. The exterior restoration is exceptional, with careful attention paid to every detail. The home was fully repainted in 2024, and the original windows were thoughtfully restored. Outdoor living is equally impressive, featuring a welcoming wraparound front porch and a side deck located just off the dining room-an ideal space for entertaining-leading to a large paver patio below. The expansive backyard includes a fire pit area and a dedicated shed housing firewood, a pizza oven, and a smoker. Mature landscaping, flowering trees, a newer fence, and a three-car garage complete the property. This distinguished home has earned both the Cavalcade of Pride Award and a Historic Preservation Award and is ideally located in the heart of Oak Park, just steps from schools, the Farmers Market, shops, Ridgeland Commons, parks, and more.
- Principal and Interest
- Property Tax
- HOA fee
- Private Mortgage Insurance




































