Overview
Description
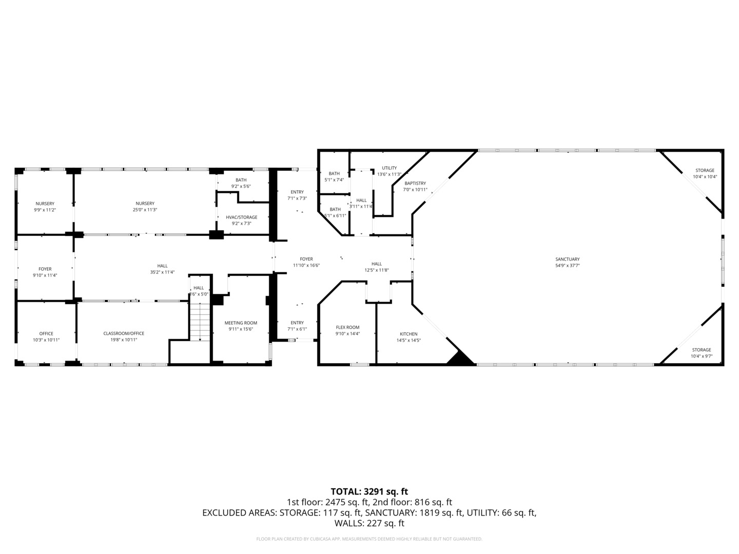
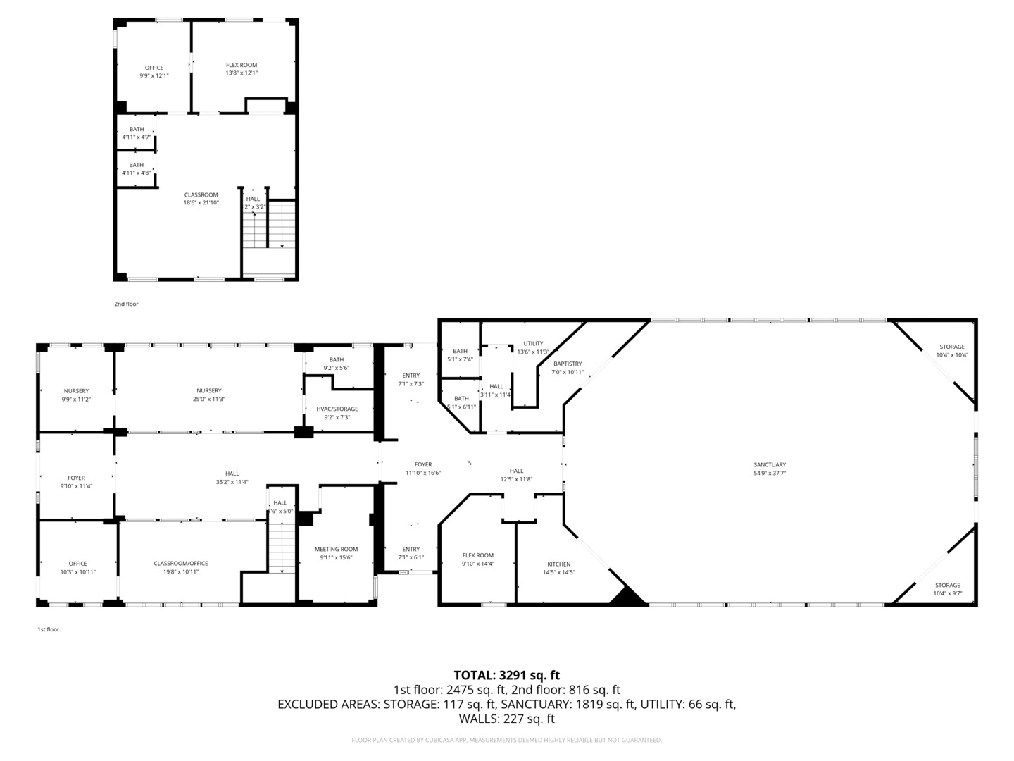
Nestled within a quiet, established residential neighborhood in Bolingbrook, this unique property offers an exceptional opportunity for a variety of residential and community-focused uses. Currently configured as a place of worship, the building showcases distinctive mid-century modern design with bold vertical siding, warm brick accents, and a welcoming covered entry that blends seamlessly into its surroundings. Inside, a spacious open-concept main hall is highlighted by soaring vaulted ceilings, exposed trusses, and abundant natural light, creating an inviting and flexible gathering space. The layout is complemented by multiple additional rooms ideal for offices, classrooms, or private living areas, along with a full kitchen, restrooms, and ample storage, offering endless possibilities for reconfiguration. Zoned R-3 residential, this property presents incredible potential for conversion to a large single-family or multi-generational home, daycare, community center, or other permitted residential uses. Its prime location provides convenient access to major highways including I-55 and I-355, as well as shopping, dining, parks, and all the amenities that make Bolingbrook a desirable place to live. This is a rare opportunity to reimagine a unique and spacious property in a sought-after suburban setting. Make your appointment today and explore the possibilities!
- Principal and Interest
- Property Tax
- HOA fee
- Private Mortgage Insurance




























