Overview
- 281955
- Property ID
- Updated On:
- April 20, 2026
- Independent Homes
- Category
- 4
- Bedrooms
- 3
- Bathrooms
- 2,559 ft2
- Property Size
- 0 ft2
- Property Lot Size
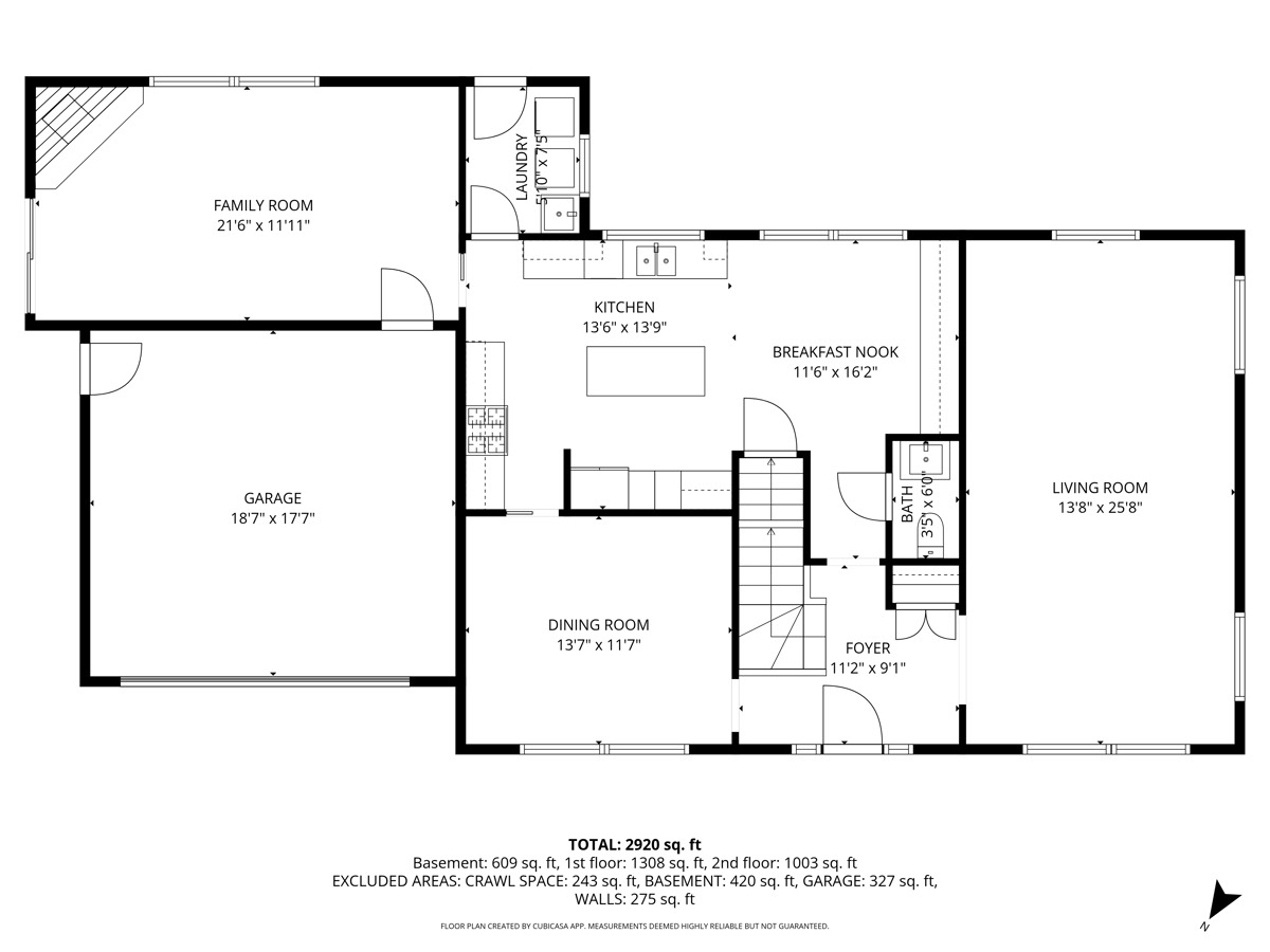
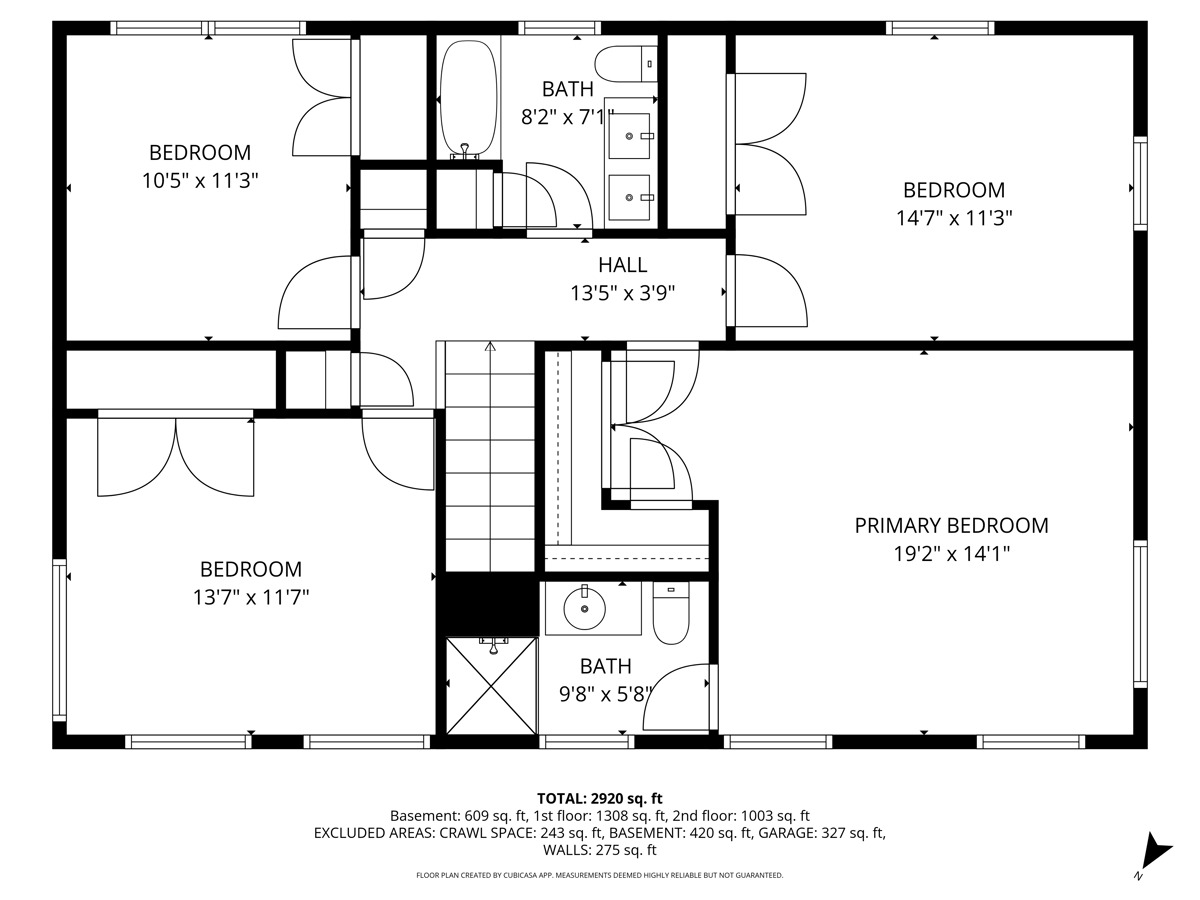
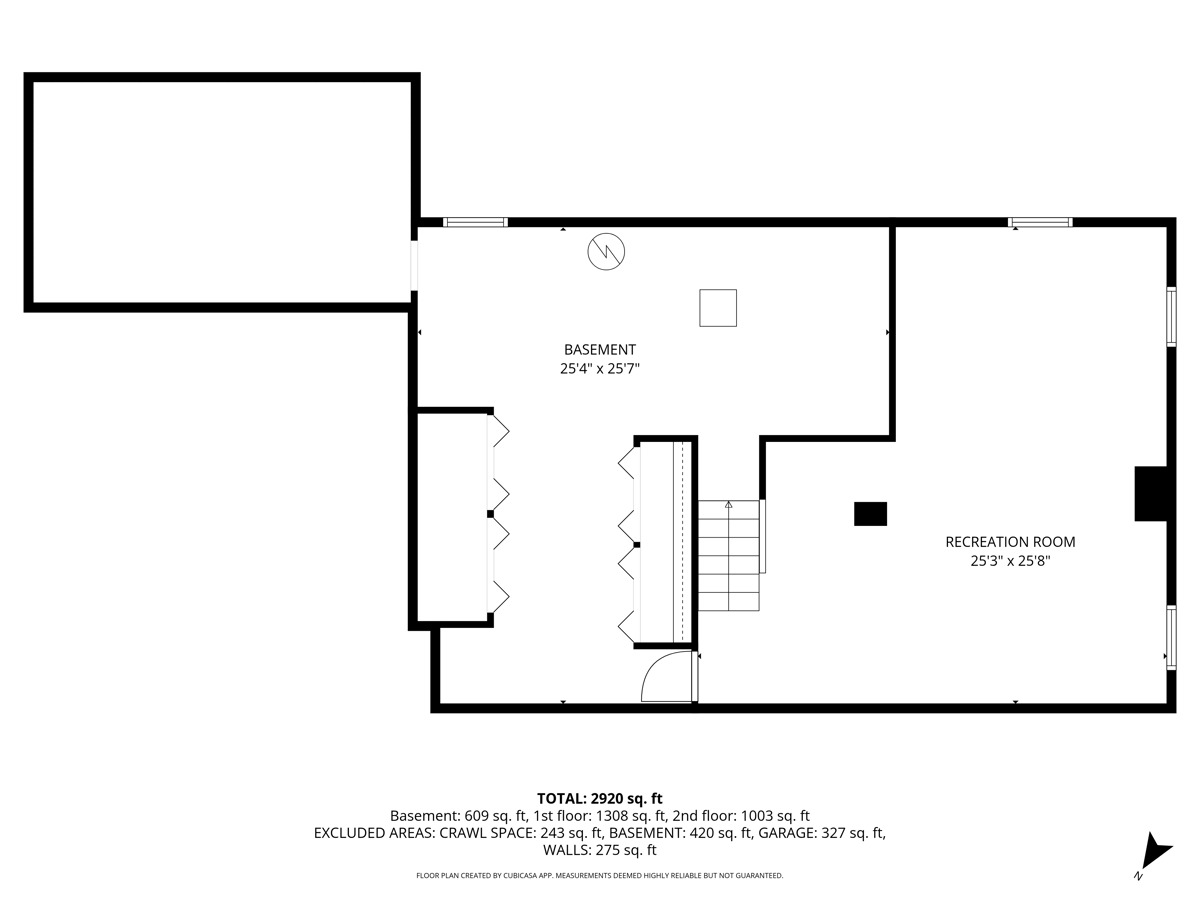
Description
All We Can Say is “WOW”. Sleek, Simple, Sophisticated Recent Renovation of This Roomy, Classic Four Bedroom, Two and a Half Bath Braeside Colonial. Spectacular East Highland Park Location in The Highly Sought-After Top-Rated Braeside District, Set on Nearly 1/3 Acre Premium Corner Lot. Ideally Located Just Steps from the Iconic Ravinia Festival, Charming Historic Downtown Area, Idyllic Chicago Botanic Garden, Metra Stations and Highways. Impressive Improvement List. Immaculate Flowing White Kitchen with 42 Inch White Shaker Style Cabinetry, Carrera Quartz Countertops & Stainless Appliances. Adjacent Breakfast Area with Additional Wall to Wall Cabinetry. Sun Drenched, Classy and Inviting Living Room with Stunning Original Mid Century Solid Oak Floors. Cozy Family Room with Wood Burning Fireplace opens to Brick Paver Patio and Fully Fenced Yard. Newer Solid Hickory Floors Throughout First Floor. Elegant Interior Window Shutters, Extensive Crown Molding Throughout. Four Generous Sized Bedrooms including Spacious Master Suite with Double Closets and Full Upscale Bath, Remodeled with Newer Elegant Curved Cabinetry, Quartz Countertop & Custom Tilework. Gorgeous Upstairs Hall Bathroom with Dual Sinks, Quartz Countertops, and Custom Tilework. Brand New Carpeting Entire Second Floor. Newer Whole House LED Recessed Lighting Fixtures, Faucets & Plumbing Fixtures, and Closet Organizers in all Bedrooms. Attic Sealed and Extra Insulated (R49+). Brand New Gutters and Downspouts. Newer Architectural Roof. Super High Efficiency Furnace and Insulated Windows. What an Endless List! Finished Lower Level with Playroom and Utility/Storage Room with Abundant Closet Space. Unique Add-ons Including Sliding Pocket Doors and a Built-In Safe! A Wonderful Flow and a Modern Urban/Chic Design. Stately Home Exudes Tremendous Curb Appeal with its Unique “Weeping Mortar” Brick and Sided Exterior, Mature Trees and Regal Circular Drive. Charal Lane is a Private Subdivision of 28 Quality Homes. All Work Fully Approved by the City of Highland Park.
- Principal and Interest
- Property Tax
- HOA fee
- Private Mortgage Insurance






















































