Overview
- 422738
- Property ID
- Updated On:
- April 24, 2026
- Independent Homes
- Category
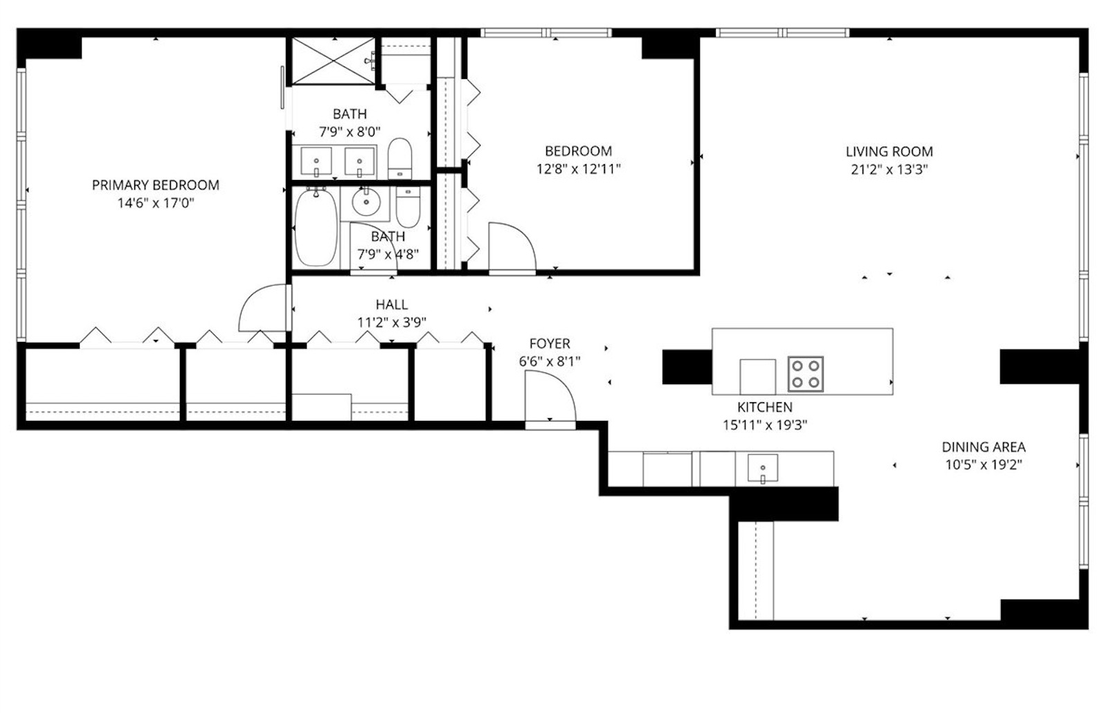
- 2
- Bedrooms
- 2
- Bathrooms
- 1,500 ft2
- Property Size
Description
A truly spectacular, oversized and extra-wide corner residence in the heart of East Lakeview, set within a premier full-service building with on-site parking. Completely reimagined in 2016, this one-of-a-kind home underwent a total transformation-meticulously curated with elevated design and uncompromising attention to detail. At nearly 26 feet wide, the dramatic open-concept living and entertaining space is nothing short of breathtaking. The show-stopping chef’s kitchen is anchored by a striking 10-foot island, seamlessly paired with a custom wet bar and coffee station-perfectly designed for both grand-scale entertaining and effortless everyday living. Every finish has been thoughtfully selected, from the sophisticated flooring and tailored millwork to the bespoke lighting and designer baths | Storage is as functional as it is refined, with fully built-out custom closets, additional linen storage, and a true walk-in pantry-all seamlessly integrated into the home’s clean, architectural lines | Positioned within the highly coveted H-tier, this residence captures rare triple exposures-East, West, and North-immersing the home in extraordinary natural light from sunrise to sunset | The primary suite is a private sanctuary, spanning an impressive ’17 and offering a marble bath with a double vanity. The second bedroom is generously scaled and effortlessly accommodates both guest quarters and a sophisticated home office | Floating high above the city’s canopy, the home offers a serene, almost cinematic “treehouse” experience -lush, ever-changing seasonal views paired with glimpses of Belmont Harbor and Lake Michigan create an unparalleled sense of escape in the city. Residents enjoy a full suite of elevated amenities, including 24-hour door staff, dual fitness centers, a dedicated package receiving room, an expansive sundeck, and valet garage parking. Four separate elevator banks provide an added layer of exclusivity, with semi-private vestibules serving just two residences per floor. Step outside and you’re moments from the lakefront and transit, while just one block west, Broadway unfolds with some of the city’s best dining, cafes, Mariano’s, boutique fitness, and vibrant nightlife. This is not simply a home – it’s a statement. A rare opportunity to experience Chicago living at its most refined.
- Principal and Interest
- Property Tax
- HOA fee
- Private Mortgage Insurance




































