3180 N Lake Shore Drive #2H, Chicago, IL

$625,000

Overview

  • 232158
  • Property ID
  • Updated On:
  • April 19, 2026
  • 2
  • Bedrooms
  • 2
  • Bathrooms
  • 1,500 ft2
  • Property Size

Description

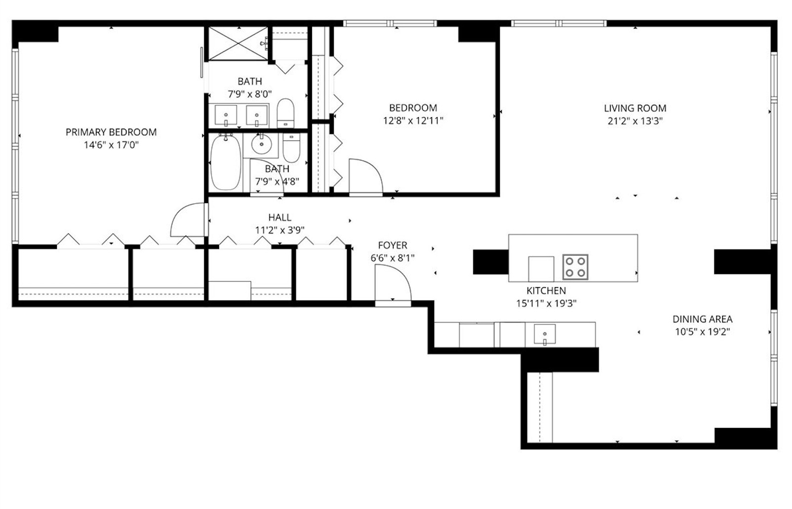
A truly spectacular, oversized and extra-wide corner residence in the heart of East Lakeview, set within a premier full-service building with on-site parking. Completely reimagined in 2016, this one-of-a-kind home underwent a total transformation-meticulously curated with elevated design and uncompromising attention to detail. At nearly 26 feet wide, the dramatic open-concept living and entertaining space is nothing short of breathtaking. The show-stopping chef’s kitchen is anchored by a striking 10-foot island, seamlessly paired with a custom wet bar and coffee station-perfectly designed for both grand-scale entertaining and effortless everyday living. Every finish has been thoughtfully selected, from the sophisticated flooring and tailored millwork to the bespoke lighting and designer baths | Storage is as functional as it is refined, with fully built-out custom closets, additional linen storage, and a true walk-in pantry-all seamlessly integrated into the home’s clean, architectural lines | Positioned within the highly coveted H-tier, this residence captures rare triple exposures-East, West, and North-immersing the home in extraordinary natural light from sunrise to sunset | The primary suite is a private sanctuary, spanning an impressive ’17 and offering a marble bath with a double vanity. The second bedroom is generously scaled and effortlessly accommodates both guest quarters and a sophisticated home office | Floating high above the city’s canopy, the home offers a serene, almost cinematic “treehouse” experience -lush, ever-changing seasonal views paired with glimpses of Belmont Harbor and Lake Michigan create an unparalleled sense of escape in the city. Residents enjoy a full suite of elevated amenities, including 24-hour door staff, dual fitness centers, a dedicated package receiving room, an expansive sundeck, and valet garage parking. Four separate elevator banks provide an added layer of exclusivity, with semi-private vestibules serving just two residences per floor. Step outside and you’re moments from the lakefront and transit, while just one block west, Broadway unfolds with some of the city’s best dining, cafes, Mariano’s, boutique fitness, and vibrant nightlife. This is not simply a home – it’s a statement. A rare opportunity to experience Chicago living at its most refined.

Bathrooms
2
Climate Control
Air Conditioning
Heating
Floor Area
1,000-2,000 sqft
Garden
Yes
Parking
Garage
Other Features
Attached
Bar Fridge
Bike Room/Bike Trails
Brick
Built-in Features
Ceiling Fan(s)
Coin Laundry
Concrete
Dishwasher
Door Person
Electric
Elevator
Elevator(s)
Exercise Room
Hardwood
Heated Garage
Intercom
Lake Michigan
Leased
Microwave
On Site Manager/Engineer
Open Floorplan
Party Room
Public
Public Sewer
Radiant
Range
Receiving Room
Refrigerator
Stainless Steel Appliance(s)
Storage
Sundeck
Wall Unit(s)
Waterfront
Wet Bar

yelp logo

$4,703.50
per month
  • Principal and Interest
  • Property Tax
  • HOA fee
  • Private Mortgage Insurance
$ 2,423.25

Similar Listings

For Sale

15 Terra Vita Court, South Barrington, IL

$2,800,000
Beds:
7
Baths:
9
Size:
13,172 ft2
Italian/mediterranean Masterpiece In Terra Vita, South Barrington. Experience Over 13,000 ...
For Sale

3305 York Road, Oak Brook, IL

$6,700,000
Beds:
6
Baths:
8
Size:
8,947 ft2
Featured as one of the Top Spotlight Homes on the Hinsdale Center of the Arts 2010 Oak Bro ...
Information for the property at 3180 N Lake Shore Drive #2H, Chicago, IL, 60657 (Property ID: 232158) is deemed reliable but not guaranteed. Property details, pricing, and availability are subject to change without notice. Buyers should independently verify all information before making any real estate decisions.

Compare Listings

Sunita Kakarlapudi