Overview
- 144345
- Property ID
- Updated On:
- April 26, 2026
- Independent Homes
- Category
- 2
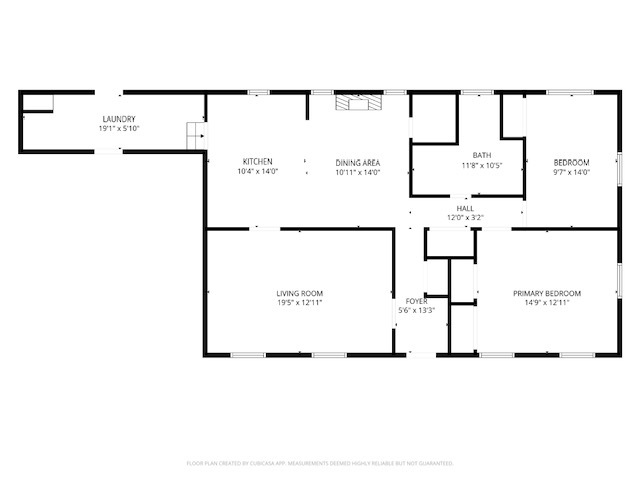
- Bedrooms
- 1
- Bathrooms
- 1,350 ft2
- Property Size
Description
Located in the heart of small-town living, you will find this beautifully maintained, move-in ready, ranch home featuring 2 spacious bedrooms, with plenty of closet space in the main bedroom, an oversized 12’x11′ bath, an additional shower conveniently located in the laundry room just off of the garage. The spacious living room and kitchen/dining combo offer plenty of gathering and entertaining necessities. Property also highlights a 2-car attached garage with drain for interior vehicle washings, two large sheds for extra storage of lawn equipment, yard tools, gardening items, etc. as well as, an oversized backyard that you can add your own outdoor living creation too, all while enjoying a quiet farming community. Don’t let this Gem pass you by, we would love to be the first to welcome you to your new home. Home is being sold “AS-IS”
- Principal and Interest
- Property Tax
- HOA fee
- Private Mortgage Insurance



























