Overview
- 252998
- Property ID
- Updated On:
- April 20, 2026
- Independent Homes
- Category
- 4
- Bedrooms
- 3
- Bathrooms
- 2,631 ft2
- Property Size
Description
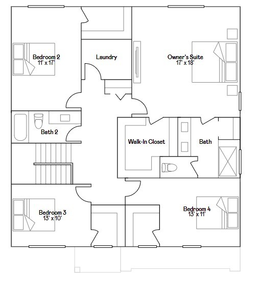
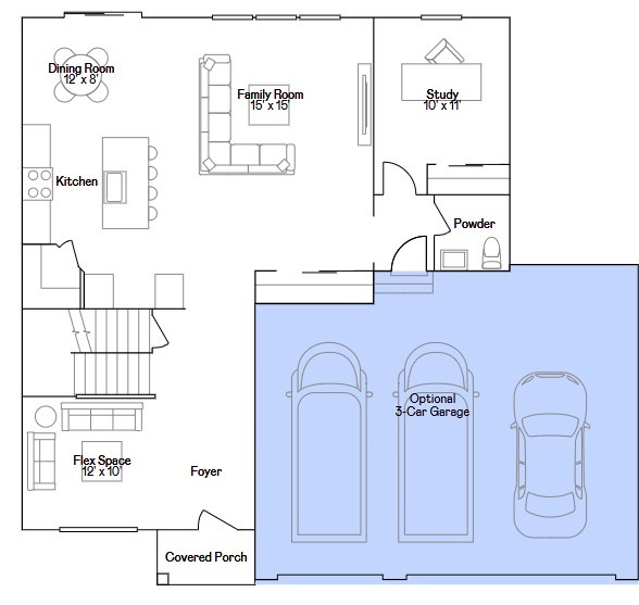
READY FOR SUMMER DELIVERY! HOMESITE #0073 SPECIAL INCENTIVES AVAILABLE! Discover the Wren, a thoughtfully designed two-story home that blends modern comfort with everyday functionality. This layout features four spacious bedrooms, two full bathrooms, and a convenient study on the main floor. The open-concept design connects the kitchen, dining area, and family room, creating a seamless flow that’s ideal for both relaxed living and entertaining. Luxury vinyl plank flooring extends throughout this main living space, adding warmth and durability. A charming, covered porch creates a warm and welcoming entry, setting the tone for what’s inside. The kitchen is well-appointed with a large center island, quartz countertops, stainless steel appliances, and ample cabinetry for storage and organization. A versatile flex room on the first floor adds extra space for a home office, playroom, or quiet retreat-tailored to fit your lifestyle. Upstairs, the private owner’s suite offers a generous walk-in closet, and an en-suite bathroom designed for comfort. Three additional bedrooms and a full bathroom provide flexible options for family, guests, or hobbies. A second-floor laundry room adds convenience, while a two-car garage and thoughtful interior design details enhance daily living. The Wren delivers a smart, stylish layout designed to support the rhythms of modern life. Exterior will be Driftwood color siding with Benton color brick. (pic for reference ONLY) “Welcome to Remington Grove – a welcoming new community in Johnsburg, IL. Surrounded by mature trees, ponds, and winding streets, Remington Grove offers thoughtfully designed single-family homes in a quiet neighborhood setting with walking paths and inviting green spaces throughout. Just minutes away, you can enjoy Johnsburg’s small-town charm – with local shops, dining, and conveniences along Route 31, plus quick access to Walmart, ALDI, and HomeGoods. Outdoor recreation is all around you, from parks and sports fields to boating and fishing on Pistakee Lake and the Chain O’ Lakes. Families appreciate the well-regarded Johnsburg School District 12, and commuters benefit from nearby Metra access in McHenry. Remington Grove blends natural beauty, community comfort, and everyday convenience – the best of life in Johnsburg.”
- Principal and Interest
- Property Tax
- HOA fee
- Private Mortgage Insurance



























