Overview
- 198954
- Property ID
- Updated On:
- April 12, 2026
- Independent Homes
- Category
- 5
- Bedrooms
- 2
- Bathrooms
- 2,500 ft2
- Property Size
Description
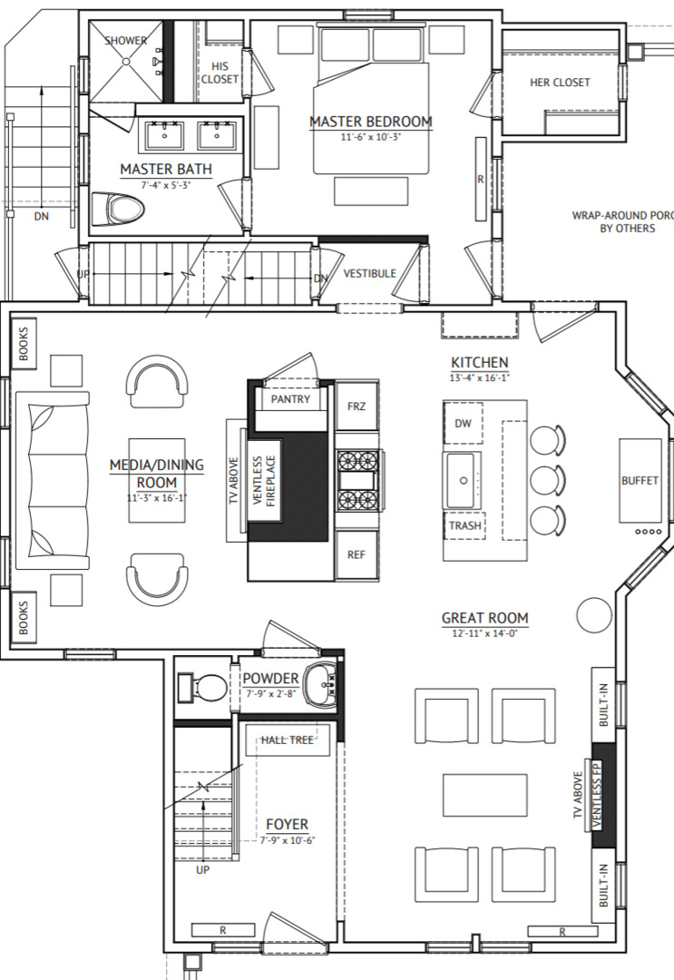
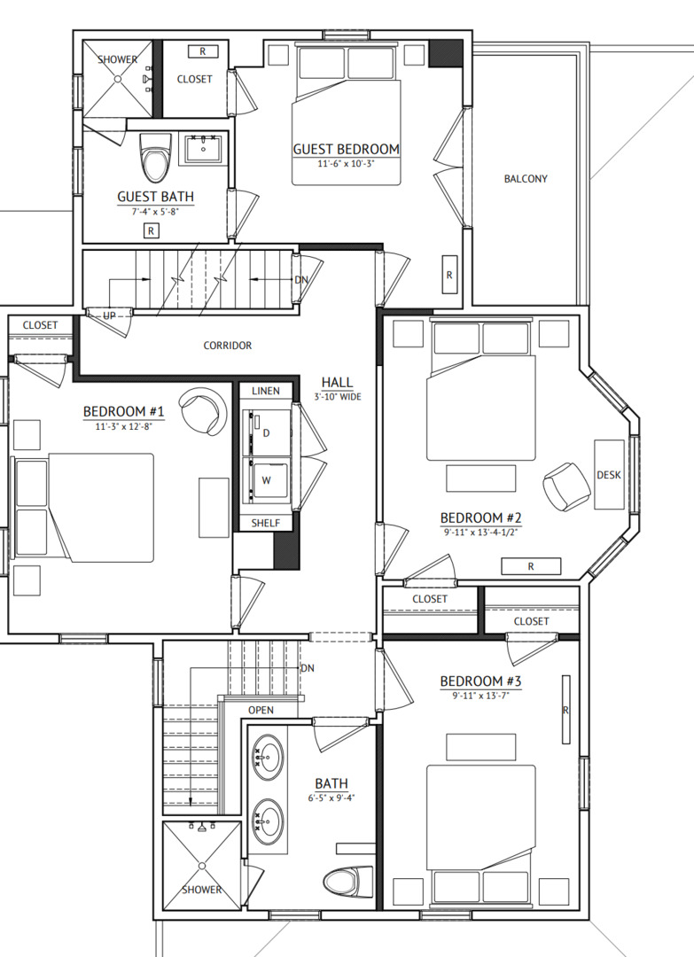
Downtown Wheaton opportunity in this remodeled Zoned C-4 property. Ideal for various uses, including single-family home, a multi-unit building with two units or mixed use with commercial for various business opportunities with option of apartment on one floor. Nearly everything has been updated – in anticipation of various types of buyers, who can add their finishing touches as far as putting in the kitchen for single family or apartment, or using as is for commercial. The current floor plan allows for 5-6 bedrooms between the 2 floors. These can be bedrooms, or family room/den 2nd kitchen set up. You cannot beat this location for the luxury of living in the downtown area. Situated on a corner lot, this property boasts ten parking spaces and a large side driveway accessible from both Hale and Illinois Streets. The generous lot size also offers the possibility of adding a garage, which could further enhance the property’s appeal. An interior front staircase provides direct access to the second floor, which could easily serve as bedrooms, keeping with its original design, or used as a separate apartment. Additionally, a separate side door entrance allows for its use as a two-unit dwelling with private access, offering flexibility for various living arrangements. The charming building features a welcoming front porch (rebuilt 2026) and is ideally located near a variety of shops, restaurants, and other downtown amenities. In addition to all of this, the basement offers plenty of storage, and the spacious attic, accessible from the second floor, could be converted into additional living space, offering even more potential to expand. The property also features several updates just completed. New Dual HVAC – yes central air! 2 full bathrooms, interior doors, outlets, basement painted, new siding, roof, trim, flooring, lighting, water line supply from lead to copper, drop ceilings converted to drywall with custom lighting, Windows replaced in 2015 , Landscaping & driveway resealing, completed in 2021. There is room on the 1st level for a powder room if desired. Currently one full bathroom on first level, and one full bathroom on 2nd level. Also room for a 3rd full bathroom on 2nd level. The drawings shown in photos are an example of how to use the rooms. Also the balcony is an idea, not currently in place on the home. This would be up to the buyer.
- Principal and Interest
- Property Tax
- HOA fee
- Private Mortgage Insurance



































