3233 Jori Lane, Johnsburg, IL

$471,280

Overview

  • 232578
  • Property ID
  • Updated On:
  • April 14, 2026
  • 4
  • Bedrooms
  • 3
  • Bathrooms
  • 2,203 ft2
  • Property Size

Description

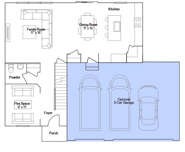
SPECIAL INCENTIVES AVAILABLE!* Homesite #0153. Unveil the Starling, an expertly constructed home where exceptional design blends effortlessly with everyday comfort. This airy design offers four bedrooms, two bathrooms, a powder room, and a versatile flex room, perfect for adapting to your lifestyle. Luxury vinyl plank flooring flows throughout the main living space, creating a warm and inviting atmosphere in the open-concept family room, dining area, and kitchen. The chef-inspired kitchen features stainless steel appliances, sleek 42″ cabinetry, elegant quartz countertops, and a large island that serves as both a focal point and a functional workspace. A built-in pantry adds extra convenience and storage. The owner’s suite, situated on the upper level, is an oasis with a generous walk-in closet and a spa-like en-suite bathroom. The bathroom includes double sinks and a deluxe shower, creating a luxurious space for relaxation. Three additional bedrooms share a full bathroom, and the convenience of a second-floor laundry room makes everyday tasks easier. The first floor features a flexible space that can be customized to fit your needs-whether it’s a home office, dining room, or entertainment area, the possibilities are endless. Additionally, a standard three-car garage provides ample parking and storage Exterior will be Canyon color siding with Weather Ledge – Sagewood color stone. (pic for reference ONLY). *Photos are not this actual home* Welcome to Remington Grove – a welcoming new community in Johnsburg, IL. Surrounded by mature trees, ponds, and winding streets, Remington Grove offers thoughtfully designed single-family homes in a quiet neighborhood setting with walking paths and inviting green spaces throughout. Just minutes away, you can enjoy Johnsburg’s small-town charm – with local shops, dining, and conveniences along Route 31, plus quick access to Walmart, ALDI, and HomeGoods. Outdoor recreation is all around you, from parks and sports fields to boating and fishing on Pistakee Lake and the Chain O’ Lakes. Families appreciate the well-regarded Johnsburg School District 12, and commuters benefit from nearby Metra access in McHenry. Remington Grove blends natural beauty, community comfort, and everyday convenience – the best of life in Johnsburg.

Bathrooms
3
Bedrooms
4
Climate Control
Air Conditioning
Heating
Floor Area
2,000-3,000 sqft
Garden
Yes
Parking
Garage
Other Features
Asphalt
Attached
Central Air
Curbs
Dishwasher
Disposal
Forced Air
Garage Door Opener
Garage Owned
Microwave
Natural Gas
New Construction
Public
Public Sewer
Sidewalks
Stainless Steel Appliance(s)
Stone
Street Lights
Street Paved
Vinyl Siding

yelp logo

$2,956.35
per month
  • Principal and Interest
  • Property Tax
  • HOA fee
  • Private Mortgage Insurance
$ 1,827.25

Similar Listings

For Sale

435 N Michigan Avenue #503, Chicago, IL

$2,675,000
Beds:
3
Baths:
4
Size:
3,249 ft2
Tribune Tower Residence offers an amazing opportunity to own a home in one of Chicago's mo ...
For Sale

1576 Pine Lake Drive, Naperville, IL

$1,015,000
Beds:
4
Baths:
5
Size:
3,969 ft2
Located in the prestigious White Eagle Golf Club community, known for its premier amenitie ...
Information for the property at 3233 Jori Lane, Johnsburg, IL, 60051 (Property ID: 232578) is deemed reliable but not guaranteed. Property details, pricing, and availability are subject to change without notice. Buyers should independently verify all information before making any real estate decisions.

Compare Listings

Sunita Kakarlapudi