Overview
- 80210
- Property ID
- Updated On:
- April 1, 2026
- Independent Homes
- Category
- 4
- Bedrooms
- 3
- Bathrooms
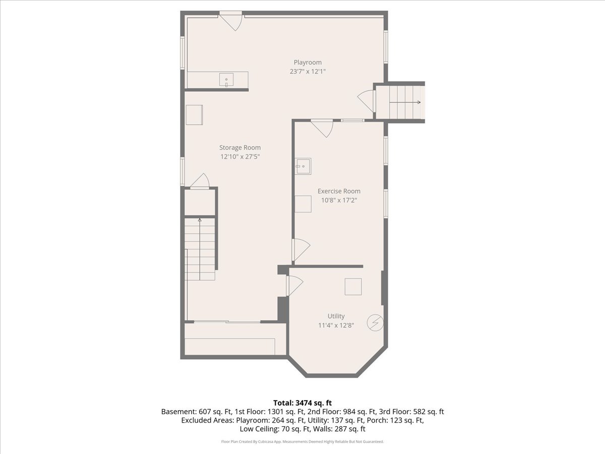
- 4,163 ft2
- Property Size
- 0 ft2
- Property Lot Size
Description
BEST & FINAL OFFERS DUE BY SAT 4/4 @ 5PM * Stellar location for this 1889 Victorian, nestled in the middle of the block – walk to top-rated River Forest schools, including Lincoln Elementary and Roosevelt Middle School, both of which have earned Exemplary Designations, the highest rating issued by the state. Nearby Park District parks, batting cages, paddle courts, a sledding hill, and shopping round out the neighborhood, while easy access to both O’Hare and Midway airports and a short walk to the Metra put you minutes from downtown Chicago and the broader suburbs – you are genuinely at the center of it all. A welcoming front porch opens to a generous foyer, where original architectural details set the tone throughout: stained and leaded glass, vintage tiled fireplace surrounds, intricate moldings, and carved oak millwork. The extra-large living room features a fireplace, built-ins, and a charming window seat, while the good-sized dining room is fit for a holiday crowd. The custom-designed kitchen impresses with plentiful counter space, a large island perfect for prep or entertaining, and top-quality appliances sure to please every cook; it opens seamlessly to the family room addition, where large windows frame a spectacular backyard with bluestone patio. A first-floor full bathroom, laundry, pantry closet, and mudroom cabinetry make everyday living effortless. Upstairs, a beautiful carved staircase leads to four bright, sunny bedrooms, including a primary suite with custom built-ins flanking the original decorative fireplace, plus two updated bathrooms. The third-floor bonus space delivers a fabulous rec room and office with soaring ceilings and loads of natural light. Add an attached garage and a truly wow-worthy yard, and 327 is the complete package.
- Principal and Interest
- Property Tax
- HOA fee
- Private Mortgage Insurance










































