Overview
- 193755
- Property ID
- Updated On:
- April 12, 2026
- Independent Homes
- Category
- 3
- Bedrooms
- 1
- Bathrooms
- 1,176 ft2
- Property Size
- 0 ft2
- Property Lot Size
Description
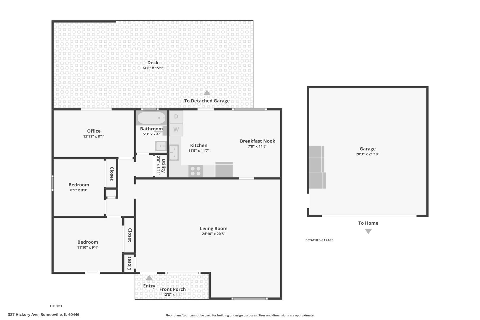
Welcome to this charming and well-maintained 3-bedroom, 1-bath ranch with a 2-car detached garage offering 1,176 sq. ft. of comfortable living space. Inside, you’ll find luxury vinyl flooring throughout and a warm oak trim package that adds character to every room. The eat in kitchen is equipped with oak cabinetry, stainless steel appliances, and ample storage. The highlight of the home is the spacious 25′ x 21′ living room, complete with a wood-pellet stove that provides both comfort and efficiency. The layout includes three bedrooms, with the third bedroom offering direct access to a 35′ x 15′ backyard deck-a perfect spot for relaxing or entertaining. The fully fenced backyard provides privacy and plenty of space for outdoor activities. This property features a detached, insulated & heated 20′ x 22′ garage-perfect for a workshop, hobby space, or year-round storage-along with a long, extended driveway providing parking for up to six vehicles. Recent updates roof, gutter’s, washer & dryer in 2021. Gazebo in 2020 Located within walking distance of all three local schools, this home combines convenience, comfort, and functionality. Commuting, golfing, shopping, and dining are made easy with quick access to major highways. A beautifully updated home in a prime location-priced to sell, move-in ready, and a must-see!
- Principal and Interest
- Property Tax
- HOA fee
- Private Mortgage Insurance




































